Zéphyr 2 Tuile RE20

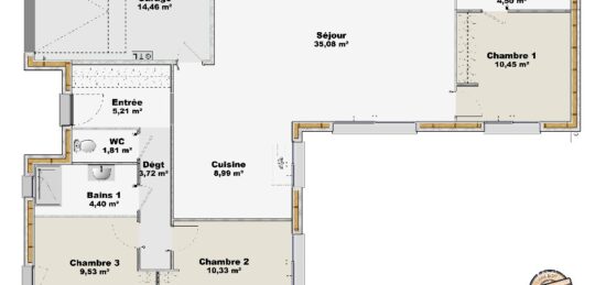
Plan maison 5 pièces 4 chambres Surface maison 99 à 100 m2

Le charme classique sublimé par la lumière
Avec ses 99 m² et son étage complet, le modèle Zéphyr 2 Tuile RE2020 séduit par son style traditionnel et sa toiture à 2 pans recouverte de tuiles. Cette architecture intemporelle s'associe à de larges ouvertures pour offrir une luminosité généreuse, créant un cadre de vie chaleureux et apaisant.
À l'intérieur, la lumière naturelle s'invite dans chaque pièce : une zone jour ouverte et conviviale, idéale pour des moments en famille, et des chambres à l'étage baignées de clarté. Conforme à la RE2020, cette maison garantit une performance énergétique élevée et un confort durable.
Ce modèle est parfait pour ceux qui recherchent une maison au charme classique, où la lumière devient synonyme de bien-être et de qualité de vie.

Construire ce modèle ?

    * Champs obligatoires

    Vos informations sont traitées par HEXAOM et transmises à un conseiller commercial qui vous contactera afin de répondre à votre demande. Les plans et images présentés sur notre site sont la propriété d’HEXAOM et ne peuvent pas être reproduits sans son accord. Pour retrouver notre politique de protection des données personnelles et exercer vos droits conformément à la « loi informatique et liberté » cliquez-ici.