Signature Tradilignes

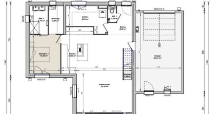
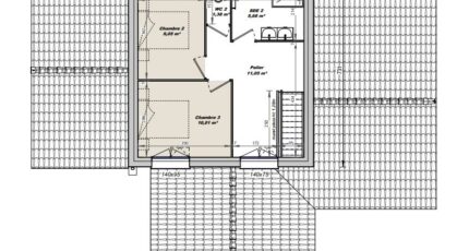
Plan maison 8 pièces 3 chambres Surface maison 119 m2

Découvrez la maison Signature Tradilignes, un bijou architectural qui réalise tous vos rêves. Luxe, confort et élégance se rencontrent dans cette résidence d'exception. Avec 3 chambres bien agencées, dont une suite parentale somptueuse au rez-de-chaussée, cette maison offre un espace intime et luxueux. Un vaste séjour baigné de lumière, une cuisine ouverte moderne, un garage spacieux et des finitions de qualité vous attendent. Ne manquez pas cette opportunité unique de vivre dans une maison qui dépasse toutes les attentes. Contactez-nous dès maintenant pour réaliser vos rêves.

Construire ce modèle ?

    * Champs obligatoires

    Vos informations sont traitées par HEXAOM et transmises à un conseiller commercial qui vous contactera afin de répondre à votre demande. Les plans et images présentés sur notre site sont la propriété d’HEXAOM et ne peuvent pas être reproduits sans son accord. Pour retrouver notre politique de protection des données personnelles et exercer vos droits conformément à la « loi informatique et liberté » cliquez-ici.