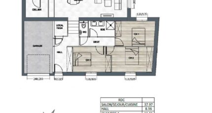
PORNICHET F1 Plan maison 4 pièces 3 chambres Surface maison 96 à 96.51 m2 Voir les plans - 245 000 Agrandir l'image… Agrandir l'image… Agrandir l'image… Agrandir l'image… Afficher PORNICHET F1 Maisons Tradilignes Afficher PORNICHET F1 Maisons Tradilignes Afficher PORNICHET F1 Maisons Tradilignes Afficher PORNICHET F1 Maisons Tradilignes Construire ce modèle ? Prénom : * Nom : * Téléphone :* Votre adresse électronique :* Département de construction :* Département de votre projet44 - Loire-Atlantique85 - Vendée Votre message Bonjour, Je souhaite avoir plus d'informations sur ce modèle de maison. Cordialement. * Champs obligatoires Vos informations sont traitées par HEXAOM et transmises à un conseiller commercial qui vous contactera afin de répondre à votre demande. Lire la suiteLes plans et images présentés sur notre site sont la propriété d’HEXAOM et ne peuvent pas être reproduits sans son accord. Pour retrouver notre politique de protection des données personnelles et exercer vos droits conformément à la « loi informatique et liberté » cliquez-ici. Fermer le formulaire de contact Retour aux modèles de maisons Afficher les images en plein écran