Galerne 3 FP RE20

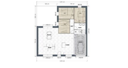
Plan maison 4 pièces 3 chambres Surface maison 93 à 94 m2

L'espace généreux pour une vie harmonieuse
Avec ses 93 m² et son plan en L, le modèle Galerne 3 FP RE2020 est conçu pour offrir un cadre de vie spacieux et lumineux. Sa toiture à 1 pan lui confère une allure contemporaine et élégante, tout en favorisant une bonne gestion des eaux pluviales. La façade de 12,44 mètres et la disposition en L permettent de créer des espaces extérieurs protégés, parfaits pour une terrasse ensoleillée ou un jardin intimiste.
À l'intérieur, la maison privilégie la fluidité et la lumière : une grande pièce de vie ouverte, idéale pour partager des moments conviviaux, et des chambres bien séparées pour préserver la tranquillité. Le garage intégré ajoute une touche pratique au quotidien. Conforme à la RE2020, ce modèle garantit une performance énergétique optimale, pour un confort thermique durable.
Cette maison est pensée pour ceux qui recherchent un cocon où chaque détail contribue à la détente et au bien-être.

Construire ce modèle ?

    * Champs obligatoires

    Vos informations sont traitées par HEXAOM et transmises à un conseiller commercial qui vous contactera afin de répondre à votre demande. Les plans et images présentés sur notre site sont la propriété d’HEXAOM et ne peuvent pas être reproduits sans son accord. Pour retrouver notre politique de protection des données personnelles et exercer vos droits conformément à la « loi informatique et liberté » cliquez-ici.