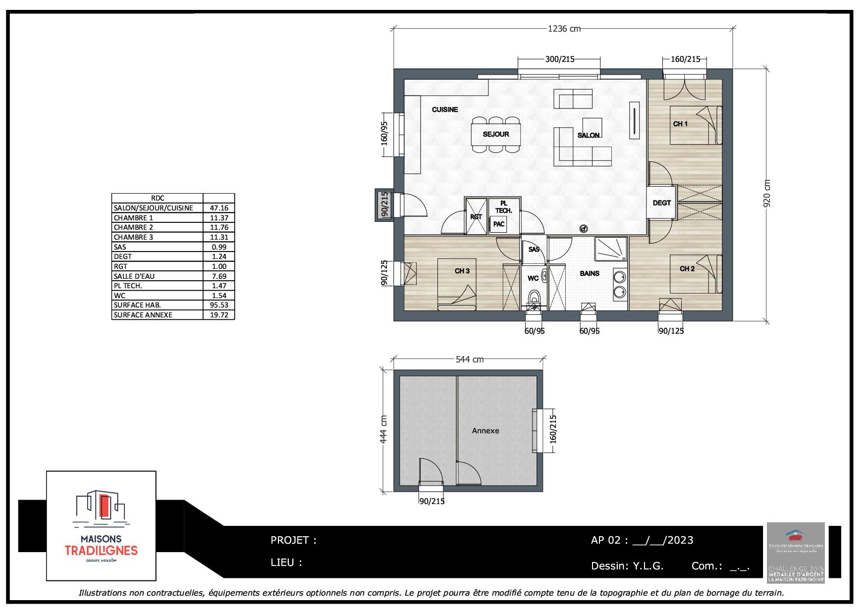
Découvrez ce futur projet sur la commune de Sainte-Marie (44) ! 2023-05-23T10:59:40+02:00 Maisons Tradilignes Inspirations Nouveau projet Notre commercial de l'agence de Pornic a réalisé cet avant-projet 100% personnalisé pour des clients ! Maison de plain pied de 95 m² à Sainte-Marie (44) Pièce de vie : 47m² avec cuisine ouverte 3 chambres 1 salle d'eau 1 annexe Maisons Tradilignes Votre constructeur de maisons en Loire-Atlantique et en Vendée Retour aux actualités