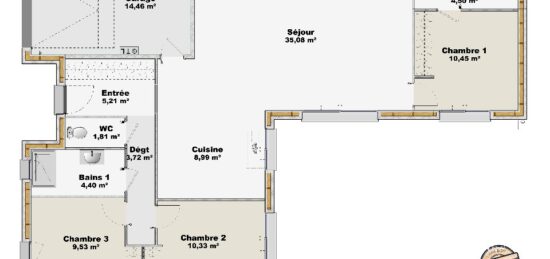
Primoz 50 PP

Plan maison 2 pièces 1 chambre Surface maison 50 m2

Primoz 50 PP
Un concentré d'essentiel pour bien démarrer
Ce plain-pied contemporain de 50 m² est pensé pour les primo-accédants en quête d'un premier chez-soi fonctionnel et abordable. Avec sa toiture à deux pans et son agencement optimisé, il propose une chambre confortable, une salle de bains, et un espace de vie ouvert, lumineux et convivial. Le compromis idéal entre simplicité et modernité.

Construire ce modèle ?

    * Champs obligatoires

    Vos informations sont traitées par HEXAOM et transmises à un conseiller commercial qui vous contactera afin de répondre à votre demande. Les plans et images présentés sur notre site sont la propriété d’HEXAOM et ne peuvent pas être reproduits sans son accord. Pour retrouver notre politique de protection des données personnelles et exercer vos droits conformément à la « loi informatique et liberté » cliquez-ici.