Plain-pied GI 3 ch Trendy

Plan maison 4 pièces 3 chambres Surface maison 85 m2

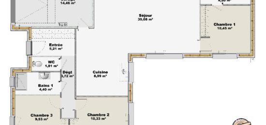
Avec ces 86 m² d'espace de vie lumineux, fonctionnel et agréable cette maison de plain-pied de la nouvelle gamme Open concentre toutes vos attentes. La pièce de vie est baignée de lumière avec de grandes ouvertures sur le jardin, il y a près de 40 m² pour recevoir la cuisine, la salle à manger et le salon. Un volume très appréciable. Pour la partie nuit, les 3 chambres sont disposées en L et chacune bénéficie de son dressing. Une généreuse salle de bains de 4 m², un WC séparé, un cellier et un garage de 15 m² viennent conclure la composition de ce plain-pied. Avec une décoration soignée et des meubles contemporains vous vous sentirez chez vous !

Construire ce modèle ?

    * Champs obligatoires

    Vos informations sont traitées par HEXAOM et transmises à un conseiller commercial qui vous contactera afin de répondre à votre demande. Les plans et images présentés sur notre site sont la propriété d’HEXAOM et ne peuvent pas être reproduits sans son accord. Pour retrouver notre politique de protection des données personnelles et exercer vos droits conformément à la « loi informatique et liberté » cliquez-ici.