Maison neuve à
Villeneuve-en-Retz (44580) Référence : VC2400687_2

Prix du projet : Maison avec Terrain

prix 370 000 €

  • 4 pièces
  • 3 chambres
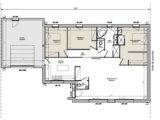
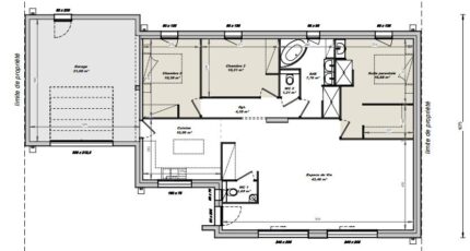
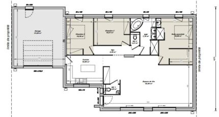
  • Surface maison 107 m2

VENTE d'une maison de 4 pièces (107 m²) à Villeneuve-en-Retz
MAISON 4 PIÈCES NEUVE - PROCHE DE SAINT-HERBLAIN
À vendre : à 9 km de l'océan Atlantique et à 31 km de Saint-Herblain, à Villeneuve-en-Retz (44580), nous vous proposons cette maison de 4 pièces de plain-pied de 107 m² et de 614 m² de terrain.
Son intérieur offre trois chambres, une cuisine et une salle de bains. La maison est neuve.
L'École Primaire Privée Sainte Julitte se trouve à moins de 10 minutes . Niveau transports, il y a quatre gares à moins de 10 minutes en voiture.
Elle est à vendre pour la somme de 370 000 €.
Contactez notre agence (COUCHAUX Vincent : 06-74-86-07-98) pour tout renseignement sur cette maison.

Mentions légales

Terrain proposé par un partenaire foncier selon disponibilités et autorisation de publicité au prix de 107 100 €. Hors droit d'enregistrement et frais de notaire. Terrain + Maison proposés au prix de 370 000 € (Hors branchements et raccordements, papiers peints, peintures, revêtement de sol dans les chambres. Tarif modifiable sans préavis). Etiquette énergie : A. Différents modèles disponibles pour ce terrain. Assurances et garanties du constructeur (RC professionnelle, décennale, dommage ouvrage, garantie de remboursement de l'acompte, livraison à prix et délai convenu) : https://www.tradilignes.fr/mentions-legales/.

Contactez l'agence de Pornic

02 40 82 59 91

    * Champs obligatoires

    Vos informations sont traitées par HEXAOM et transmises à un conseiller commercial qui vous contactera afin de répondre à votre demande. Les plans et images présentés sur notre site sont la propriété d’HEXAOM et ne peuvent pas être reproduits sans son accord. Pour retrouver notre politique de protection des données personnelles et exercer vos droits conformément à la « loi informatique et liberté » cliquez-ici.