Maison neuve à
Villeneuve-en-Retz (44580) Référence : VC2308785_3

Prix du projet : Maison avec Terrain

prix 383 600 €

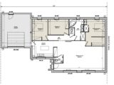
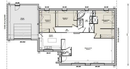
  • 4 pièces
  • 3 chambres
  • Surface maison 107 m2

Villeneuve-en-Retz : maison de 4 pièces (107 m²) à vendre
MAISON 4 PIÈCES NEUVE - PROCHE DE SAINT-HERBLAIN
À vendre à 9 km de la côte atlantique et à deux pas de Saint-Herblain, découvrez cette maison de 4 pièces de plain-pied de 107 m² et de 1 129 m² de terrain à Villeneuve-en-Retz (44580). Son intérieur se divise en trois chambres, une cuisine et une salle de bains.
Cette maison est neuve.
L'École Primaire Privée Sainte Julitte est implantée à moins de 10 minutes . Côté transports, il y a quatre gares à moins de 10 minutes en voiture.
Son prix de vente est de 383 600 €.
Contactez Vincent COUCHAUX (tél : 06-74-86-07-98) pour tout renseignement sur la maison, sur les démarches à suivre ou sur les modalités de vente. Maisons Tradilignes Pornic est là pour vous accompagner dans tous vos projets immobiliers.

Mentions légales

Terrain proposé par un partenaire foncier selon disponibilités et autorisation de publicité au prix de 125 000 €. Hors droit d'enregistrement et frais de notaire. Maison proposée, avec un contrat de construction de maison individuelle, dans le cadre de la loi du 19/12/1990, au prix de 258 600 € (Hors branchements et raccordements, papiers peints, peintures, revêtement de sol dans les chambres, qui sont chiffrés dans les travaux qui restent à charge du client. Tarif modifiable sans préavis). Étiquette énergie : A. Différents modèles disponibles pour ce terrain. Assurances et garanties du constructeur comprises (RC professionnelle, décennale, dommage ouvrage).

Contactez l'agence de Pornic

02 40 82 59 91

    * Champs obligatoires

    Vos informations sont traitées par HEXAOM et transmises à un conseiller commercial qui vous contactera afin de répondre à votre demande. Les plans et images présentés sur notre site sont la propriété d’HEXAOM et ne peuvent pas être reproduits sans son accord. Pour retrouver notre politique de protection des données personnelles et exercer vos droits conformément à la « loi informatique et liberté » cliquez-ici.