Maison neuve à
Villeneuve-en-Retz (44580) Référence : VC2259176_2

Prix du projet : Maison avec Terrain

prix 209 000 €

  • 3 pièces
  • 2 chambres
  • Surface maison 61 m2

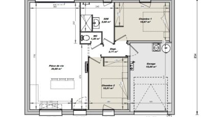
Maison de 3 pièces (61 m²) à vendre à Villeneuve-en-Retz
MAISON 3 PIÈCES NEUVE - PROCHE DE SAINT-HERBLAIN
À vendre : située à 9 km de l'océan Atlantique et à quelques kilomètres de Saint-Herblain, nous sommes ravis de vous proposer à Villeneuve-en-Retz (44580), cette maison de 3 pièces de plain-pied de 61 m² et de 369 m² de terrain.
Son intérieur compte deux chambres, une cuisine et une salle de bains. Cette maison est neuve.
L'École Primaire Privée Sainte Julitte est implantée à moins de 10 minutes . Côté transports, il y a quatre gares à moins de 10 minutes en voiture.
Elle est à vendre pour la somme de 209 000 €.
Prenez contact avec Vincent COUCHAUX (06-74-86-07-98) pour obtenir de plus amples informations sur cette maison. Maisons Tradilignes Pornic vous accompagne dans tous vos projets immobiliers et dans toutes vos démarches.

Mentions légales

Terrain proposé par un partenaire foncier selon disponibilités et autorisation de publicité au prix de 78 580 €. Hors droit d'enregistrement et frais de notaire. Maison proposée, avec un contrat de construction de maison individuelle, dans le cadre de la loi du 19/12/1990, au prix de 130 420 € (Hors branchements et raccordements, papiers peints, peintures, revêtement de sol dans les chambres, qui sont chiffrés dans les travaux qui restent à charge du client. Tarif modifiable sans préavis). Étiquette énergie : A. Différents modèles disponibles pour ce terrain. Assurances et garanties du constructeur comprises (RC professionnelle, décennale, dommage ouvrage).

Contactez l'agence de Pornic

02 40 82 59 91

    * Champs obligatoires

    Vos informations sont traitées par HEXAOM et transmises à un conseiller commercial qui vous contactera afin de répondre à votre demande. Les plans et images présentés sur notre site sont la propriété d’HEXAOM et ne peuvent pas être reproduits sans son accord. Pour retrouver notre politique de protection des données personnelles et exercer vos droits conformément à la « loi informatique et liberté » cliquez-ici.