Maison neuve à
Sainte-Pazanne (44680) Référence : VC2389515_2

Prix du projet : Maison avec Terrain

prix 365 000 €

  • 4 pièces
  • 3 chambres
  • Surface maison 107 m2

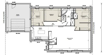
Sainte-Pazanne : maison F4 (107 m²) en vente
MAISON 4 PIÈCES NEUVE - PROCHE DE NANTES
À 20 km de l'océan Atlantique et à deux pas de Nantes, à vendre à Sainte-Pazanne (44680), nous sommes heureux de vous présenter cette maison de 4 pièces de plain-pied de 107 m² et de 422 m² de terrain.
Elle comporte trois chambres, une cuisine et une salle de bains. Cette maison est neuve.
On trouve cinq établissements scolaires à moins de 10 minutes . Côté transports, il y a la gare Sainte-Pazanne dans un rayon de 1 km. Les nationales N844 et N444 sont accessibles à moins de 19 km. On trouve un tennis, un bassin de natation, des commerces, deux boulangeries, un supermarché, une boucherie-charcuterie et une épicerie dans les environs. Le marché Place du 18 juin 1940 anime le quartier tous les vendredis matin.
Son prix de vente est de 365 000 €.
Contactez notre agence (Vincent COUCHAUX : 06-74-86-07-98) pour toute information sur la maison. Donnez vie à vos projets immobiliers avec Maisons Tradilignes Pornic.

Mentions légales

Terrain proposé par un partenaire foncier selon disponibilités et autorisation de publicité au prix de 105 100 €. Hors droit d'enregistrement et frais de notaire. Terrain + Maison proposés au prix de 365 000 € (Hors branchements et raccordements, papiers peints, peintures, revêtement de sol dans les chambres. Tarif modifiable sans préavis). Etiquette énergie : A. Différents modèles disponibles pour ce terrain. Assurances et garanties du constructeur (RC professionnelle, décennale, dommage ouvrage, garantie de remboursement de l'acompte, livraison à prix et délai convenu) : https://www.tradilignes.fr/mentions-legales/.

Contactez l'agence de Pornic

02 40 82 59 91

    * Champs obligatoires

    Vos informations sont traitées par HEXAOM et transmises à un conseiller commercial qui vous contactera afin de répondre à votre demande. Les plans et images présentés sur notre site sont la propriété d’HEXAOM et ne peuvent pas être reproduits sans son accord. Pour retrouver notre politique de protection des données personnelles et exercer vos droits conformément à la « loi informatique et liberté » cliquez-ici.