Maison neuve à
Sainte-Pazanne (44680) Référence : VC2341869_3

Prix du projet : Maison avec Terrain

prix 268 000 €

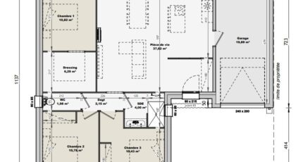
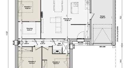
  • 4 pièces
  • 3 chambres
  • Surface maison 84 m2

VENTE : maison F4 (84 m²) à Sainte-Pazanne
MAISON 4 PIÈCES NEUVE - PROCHE DE NANTES
À 12 km de la côte atlantique et à deux pas de Nantes, nous sommes heureux de vous présenter cette maison de 4 pièces de plain-pied de 84 m² et de 360 m² de terrain en vente à Sainte-Pazanne (44680). Conçue de plain-pied, elle est composée de trois chambres, d'une cuisine et d'une salle de bains.
Cette maison est neuve.
Il y a cinq établissements scolaires à moins de 10 minutes . Côté transports, on trouve la gare Sainte-Pazanne juste à côté. Les nationales N844 et N444 sont accessibles à moins de 19 km. Il y a un tennis, un bassin de natation, des commerces, deux boulangeries, un supermarché, une boucherie-charcuterie et une épicerie dans les environs. Enfin, le marché Place du 18 juin 1940 a lieu chaque vendredi matin.
Il est à vendre pour la somme de 268 000 €.
Contactez Vincent COUCHAUX (tél : 06-74-86-07-98) pour plus d'informations sur cette maison. Concrétisez vos projets immobiliers avec Maisons Tradilignes Pornic.

Mentions légales

Terrain proposé par un partenaire foncier selon disponibilités et autorisation de publicité au prix de 100 000 €. Hors droit d'enregistrement et frais de notaire. Maison proposée, avec un contrat de construction de maison individuelle, dans le cadre de la loi du 19/12/1990, au prix de 168 000 € (Hors branchements et raccordements, papiers peints, peintures, revêtement de sol dans les chambres, qui sont chiffrés dans les travaux qui restent à charge du client. Tarif modifiable sans préavis). Étiquette énergie : A. Différents modèles disponibles pour ce terrain. Assurances et garanties du constructeur comprises (RC professionnelle, décennale, dommage ouvrage).

Contactez l'agence de Pornic

02 40 82 59 91

    * Champs obligatoires

    Vos informations sont traitées par HEXAOM et transmises à un conseiller commercial qui vous contactera afin de répondre à votre demande. Les plans et images présentés sur notre site sont la propriété d’HEXAOM et ne peuvent pas être reproduits sans son accord. Pour retrouver notre politique de protection des données personnelles et exercer vos droits conformément à la « loi informatique et liberté » cliquez-ici.