Maison neuve à
Sainte-Pazanne (44680) Référence : VC2298800_3

Prix du projet : Maison avec Terrain

prix 413 000 €

  • 4 pièces
  • 3 chambres
  • Surface maison 107 m2

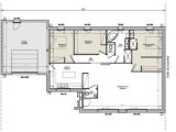
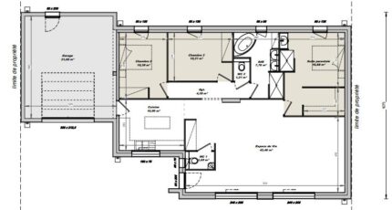
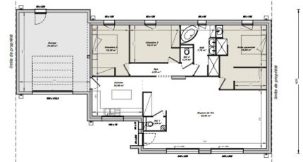
VENTE d'une maison de 4 pièces (107 m²) à Sainte-Pazanne
PROCHE DE NANTES - MAISON 4 PIÈCES NEUVE
À vendre : située à 12 km de l'océan Atlantique et à quelques kilomètres de Nantes, à Sainte-Pazanne (44680), nous sommes ravis de vous présenter cette maison de 4 pièces de plain-pied de 107 m².
Son intérieur est composé de trois chambres, d'une cuisine et d'une salle de bains. Cette maison est neuve.
Le terrain du bien est de 531 m².
On trouve cinq établissements scolaires à moins de 10 minutes . Niveau transports, il y a la gare Sainte-Pazanne dans les alentours. Les nationales N844 et N444 sont accessibles à moins de 19 km. On trouve un tennis, un bassin de natation, des commerces, deux boulangeries, un supermarché, une épicerie et une boucherie-charcuterie à quelques minutes de la maison. Enfin, le marché Place du 18 juin 1940 anime le quartier chaque vendredi matin.
Son prix de vente est de 413 000 €.
Prenez contact avec notre agence (COUCHAUX Vincent : 06-74-86-07-98) pour plus d'informations sur la maison ou sur les démarches à suivre.

Mentions légales

Terrain proposé par un partenaire foncier selon disponibilités et autorisation de publicité au prix de 154 500 €. Hors droit d'enregistrement et frais de notaire. Maison proposée, avec un contrat de construction de maison individuelle, dans le cadre de la loi du 19/12/1990, au prix de 258 500 € (Hors branchements et raccordements, papiers peints, peintures, revêtement de sol dans les chambres, qui sont chiffrés dans les travaux qui restent à charge du client. Tarif modifiable sans préavis). Étiquette énergie : A. Différents modèles disponibles pour ce terrain. Assurances et garanties du constructeur comprises (RC professionnelle, décennale, dommage ouvrage).

Contactez l'agence de Pornic

02 40 82 59 91

    * Champs obligatoires

    Vos informations sont traitées par HEXAOM et transmises à un conseiller commercial qui vous contactera afin de répondre à votre demande. Les plans et images présentés sur notre site sont la propriété d’HEXAOM et ne peuvent pas être reproduits sans son accord. Pour retrouver notre politique de protection des données personnelles et exercer vos droits conformément à la « loi informatique et liberté » cliquez-ici.