Maison neuve à
Saint-Viaud (44320) Référence : VC2354512_3

Prix du projet : Maison avec Terrain

prix 241 900 €

  • 4 pièces
  • 3 chambres
  • Surface maison 84 m2

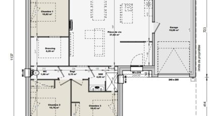
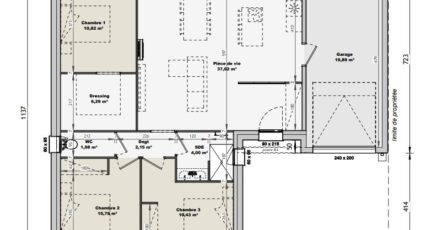
VENTE : maison T4 (84 m²) à Saint-Viaud
CENTRE-VILLE - MAISON 4 PIÈCES NEUVE
En vente : localisée à 4 km de la côte atlantique et à quelques kilomètres de Saint-Nazaire, nous vous proposons cette maison de 4 pièces de plain-pied de 84 m² et de 547 m² de terrain, dans le centre de Saint-Viaud (44320).
Son intérieur compte trois chambres, une cuisine et une salle de bains. La maison est neuve.
L'École Primaire Privée Saint Vital et l'École Primaire Publique le Mont Scobrit sont implantées à moins de 10 minutes à pied, tout comme deux crèches. Niveau transports en commun, il y a la gare Donges à moins de 10 minutes en voiture. Les nationales N171 et N165 sont accessibles à moins de 15 km. On trouve un tennis, un commerce, deux boulangeries, un bureau de poste et une épicerie à proximité.
Il est proposé à l'achat pour 241 900 €.
Contactez notre agence (COUCHAUX Vincent : 06-74-86-07-98) pour plus de renseignements sur la maison. Maisons Tradilignes Pornic est là pour vous accompagner dans tous vos projets immobiliers.

Mentions légales

Terrain proposé par un partenaire foncier selon disponibilités et autorisation de publicité au prix de 74 900 €. Hors droit d'enregistrement et frais de notaire. Maison proposée, avec un contrat de construction de maison individuelle, dans le cadre de la loi du 19/12/1990, au prix de 167 000 € (Hors branchements et raccordements, papiers peints, peintures, revêtement de sol dans les chambres, qui sont chiffrés dans les travaux qui restent à charge du client. Tarif modifiable sans préavis). Étiquette énergie : A. Différents modèles disponibles pour ce terrain. Assurances et garanties du constructeur comprises (RC professionnelle, décennale, dommage ouvrage).

Contactez l'agence de Pornic

02 40 82 59 91

    * Champs obligatoires

    Vos informations sont traitées par HEXAOM et transmises à un conseiller commercial qui vous contactera afin de répondre à votre demande. Les plans et images présentés sur notre site sont la propriété d’HEXAOM et ne peuvent pas être reproduits sans son accord. Pour retrouver notre politique de protection des données personnelles et exercer vos droits conformément à la « loi informatique et liberté » cliquez-ici.