Maison neuve à
Saint-Viaud (44320) Référence : VC2322867_3

Prix du projet : Maison avec Terrain

prix 242 000 €

  • 4 pièces
  • 3 chambres
  • Surface maison 84 m2

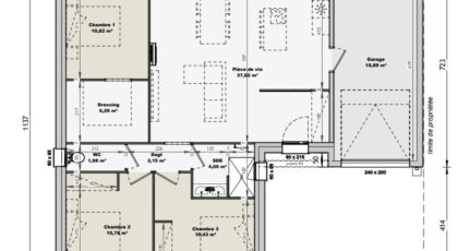
VENTE d'une maison F4 (84 m²) à Saint-Viaud
MAISON 4 PIÈCES NEUVE - PROCHE DE SAINT-NAZAIRE
Sur la côte atlantique et à 20 km de Saint-Nazaire, en vente à Saint-Viaud (44320), nous vous présentons cette maison de 4 pièces de plain-pied de 84 m². Son intérieur comporte trois chambres, une cuisine et une salle de bains.
Le terrain de cette maison s'étend sur 547 m².
Cette maison est neuve.
Il y a l'École Primaire Privée Saint Vital et l'École Primaire Publique le Mont Scobrit à moins de 10 minutes et deux structures d'accueil pour la petite enfance. Niveau transports en commun, on trouve la gare Donges à moins de 10 minutes en voiture. Les nationales N171 et N165 sont accessibles à moins de 15 km. Il y a un tennis, un commerce, deux boulangeries, une épicerie et un bureau de poste à proximité du bien.
Son prix de vente est de 242 000 €.
Contactez Vincent COUCHAUX (tél : 06-74-86-07-98) pour toute question sur la propriété, sur les modalités de vente ou sur les démarches à suivre. Faites de vos projets immobiliers une réalité avec Maisons Tradilignes Pornic.

Mentions légales

Terrain proposé par un partenaire foncier selon disponibilités et autorisation de publicité au prix de 74 900 €. Hors droit d'enregistrement et frais de notaire. Maison proposée, avec un contrat de construction de maison individuelle, dans le cadre de la loi du 19/12/1990, au prix de 167 100 € (Hors branchements et raccordements, papiers peints, peintures, revêtement de sol dans les chambres, qui sont chiffrés dans les travaux qui restent à charge du client. Tarif modifiable sans préavis). Étiquette énergie : A. Différents modèles disponibles pour ce terrain. Assurances et garanties du constructeur comprises (RC professionnelle, décennale, dommage ouvrage).

Contactez l'agence de Pornic

02 40 82 59 91

    * Champs obligatoires

    Vos informations sont traitées par HEXAOM et transmises à un conseiller commercial qui vous contactera afin de répondre à votre demande. Les plans et images présentés sur notre site sont la propriété d’HEXAOM et ne peuvent pas être reproduits sans son accord. Pour retrouver notre politique de protection des données personnelles et exercer vos droits conformément à la « loi informatique et liberté » cliquez-ici.