Maison neuve à
Saint-Mars-de-Coutais (44680) Référence : VC2416973_3

Prix du projet : Maison avec Terrain

prix 325 000 €

  • 6 pièces
  • 2 chambres
  • Surface maison 98 m2

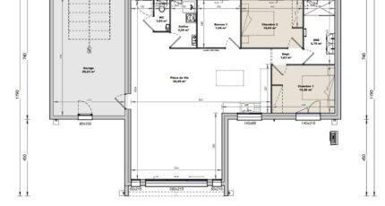
Maison de 6 pièces (98 m²) à vendre à Saint-Mars-de-Coutais
PROCHE DE NANTES - MAISON 6 PIÈCES NEUVE
À 20 km de la côte atlantique et à 22 km de Nantes, laissez vous charmer par à vendre à Saint-Mars-de-Coutais (44680), cette maison de 6 pièces de 98 m². Son intérieur compte deux chambres, une cuisine et une salle de bains.
Le terrain de la propriété est de 385 m².
Elle est neuve.
Il y a l'École Primaire Publique Madeleine et Paul Delaroche et l'École Primaire Privée Sainte Thérèse à moins de 10 minutes . Niveau transports en commun, on trouve la gare Port-Saint-Père-Saint-Mars dans un rayon de 1 km. Les autoroutes A82 et A83 et les nationales N844, N444 et N165 sont accessibles à moins de 19 km. Il y a un tennis, une boulangerie, un commerce et une épicerie à proximité du bien.
Son prix de vente est de 325 000 €.
Prenez contact avec Vincent COUCHAUX (06-74-86-07-98) pour toute information sur la maison.

Mentions légales

Terrain proposé par un partenaire foncier selon disponibilités et autorisation de publicité au prix de 83 350 €. Hors droit d'enregistrement et frais de notaire. Terrain + Maison proposés au prix de 325 000 € (Hors branchements et raccordements, papiers peints, peintures, revêtement de sol dans les chambres. Tarif modifiable sans préavis). Etiquette énergie : A. Différents modèles disponibles pour ce terrain. Assurances et garanties du constructeur (RC professionnelle, décennale, dommage ouvrage, garantie de remboursement de l'acompte, livraison à prix et délai convenu) : https://www.tradilignes.fr/mentions-legales/.

Contactez l'agence de Pornic

02 40 82 59 91

    * Champs obligatoires

    Vos informations sont traitées par HEXAOM et transmises à un conseiller commercial qui vous contactera afin de répondre à votre demande. Les plans et images présentés sur notre site sont la propriété d’HEXAOM et ne peuvent pas être reproduits sans son accord. Pour retrouver notre politique de protection des données personnelles et exercer vos droits conformément à la « loi informatique et liberté » cliquez-ici.