Maison neuve à
Saint-Mars-de-Coutais (44680) Référence : VC2416973_2

Prix du projet : Maison avec Terrain

prix 255 000 €

  • 4 pièces
  • 3 chambres
  • Surface maison 84 m2

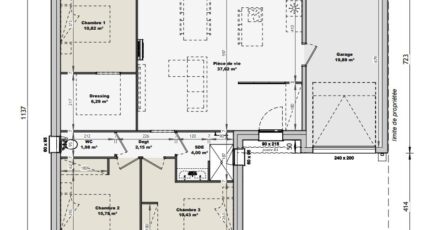
VENTE d'une maison F4 (84 m²) à Saint-Mars-de-Coutais
MAISON 4 PIÈCES NEUVE - PROCHE DE NANTES
En vente à 20 km de la côte atlantique et à quelques kilomètres de Nantes, nous sommes ravis de vous proposer à Saint-Mars-de-Coutais (44680), cette maison de 4 pièces de plain-pied de 84 m². Elle compte trois chambres, une cuisine et une salle de bains.
Le terrain de la propriété s'étend sur 385 m².
Cette maison est neuve.
Il y a l'École Primaire Publique Madeleine et Paul Delaroche et l'École Primaire Privée Sainte Thérèse à moins de 10 minutes . Niveau transports, on trouve la gare Port-Saint-Père-Saint-Mars dans les alentours. Les autoroutes A82 et A83 et les nationales N844, N444 et N165 sont accessibles à moins de 19 km. Il y a un tennis, une boulangerie, un commerce et une épicerie à proximité du logement.
Elle est proposée à l'achat pour 255 000 €.
Contactez Vincent COUCHAUX (tél : 06-74-86-07-98) pour plus de renseignements sur cette maison, sur les démarches à suivre ou sur les modalités de vente.

Mentions légales

Terrain proposé par un partenaire foncier selon disponibilités et autorisation de publicité au prix de 83 350 €. Hors droit d'enregistrement et frais de notaire. Terrain + Maison proposés au prix de 255 000 € (Hors branchements et raccordements, papiers peints, peintures, revêtement de sol dans les chambres. Tarif modifiable sans préavis). Etiquette énergie : A. Différents modèles disponibles pour ce terrain. Assurances et garanties du constructeur (RC professionnelle, décennale, dommage ouvrage, garantie de remboursement de l'acompte, livraison à prix et délai convenu) : https://www.tradilignes.fr/mentions-legales/.

Contactez l'agence de Pornic

02 40 82 59 91

    * Champs obligatoires

    Vos informations sont traitées par HEXAOM et transmises à un conseiller commercial qui vous contactera afin de répondre à votre demande. Les plans et images présentés sur notre site sont la propriété d’HEXAOM et ne peuvent pas être reproduits sans son accord. Pour retrouver notre politique de protection des données personnelles et exercer vos droits conformément à la « loi informatique et liberté » cliquez-ici.