Maison neuve à
Saint-Brevin-les-Pins (44250) Référence : VC2350001_3

Prix du projet : Maison avec Terrain

prix 508 000 €

  • 4 pièces
  • 3 chambres
  • Surface maison 107 m2

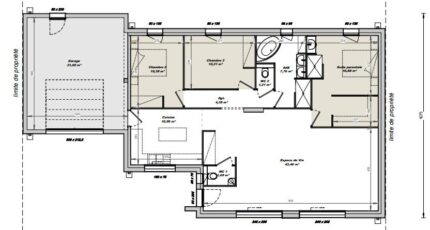
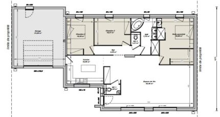
Maison F4 (107 m²) en vente à Saint Brévin l'Océan
EMPLACEMENT PRIVILÉGIÉ - MAISON 4 PIÈCES NEUVE
À vendre : à 500 m de l'océan Atlantique, nous vous présentons, bénéficiant d'un emplacement privilégié dans Saint Brévin l'Océan (44250), cette maison de 4 pièces de plain-pied de 107 m² et de 978 m² de terrain. Elle dispose de trois chambres, d'une cuisine et d'une salle de bains.
La maison est neuve.
La maison se situe dans un quartier convoité. Côté transports, on trouve cinq gares à moins de 10 minutes en voiture. La nationale N171 est accessible à 8 km. Il y a un supermarché, plusieurs commerces et une boulangerie à proximité du bien.
Elle est à vendre pour la somme de 508 000 €.
Contactez notre agence (Vincent COUCHAUX : 06-74-86-07-98) pour tout renseignement sur la maison ou sur les démarches à suivre.

Mentions légales

Terrain proposé par un partenaire foncier selon disponibilités et autorisation de publicité au prix de 249 200 €. Hors droit d'enregistrement et frais de notaire. Maison proposée, avec un contrat de construction de maison individuelle, dans le cadre de la loi du 19/12/1990, au prix de 258 800 € (Hors branchements et raccordements, papiers peints, peintures, revêtement de sol dans les chambres, qui sont chiffrés dans les travaux qui restent à charge du client. Tarif modifiable sans préavis). Étiquette énergie : A. Différents modèles disponibles pour ce terrain. Assurances et garanties du constructeur comprises (RC professionnelle, décennale, dommage ouvrage).

Contactez l'agence de Pornic

02 40 82 59 91

    * Champs obligatoires

    Vos informations sont traitées par HEXAOM et transmises à un conseiller commercial qui vous contactera afin de répondre à votre demande. Les plans et images présentés sur notre site sont la propriété d’HEXAOM et ne peuvent pas être reproduits sans son accord. Pour retrouver notre politique de protection des données personnelles et exercer vos droits conformément à la « loi informatique et liberté » cliquez-ici.