Maison neuve à
Saint-Brevin-les-Pins (44250) Référence : VC2333853_3

Prix du projet : Maison avec Terrain

prix 447 500 €

  • 4 pièces
  • 3 chambres
  • Surface maison 107 m2

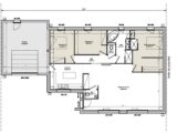
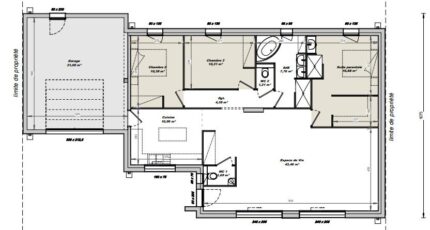
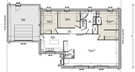
VENTE : maison de 4 pièces (107 m²) à Saint-Brevin-les-Pins
PROCHE DE SAINT-NAZAIRE - MAISON 4 PIÈCES NEUVE
En vente : localisée à 2 km de la côte atlantique et à deux pas de Saint-Nazaire, nous sommes ravis de vous proposer cette maison de 4 pièces de plain-pied de 107 m² à Saint-Brevin-les-Pins (44250). Elle dispose de trois chambres, d'une cuisine et d'une salle de bains.
Le terrain de cette maison s'étend sur 510 m².
Cette maison est neuve.
Plusieurs écoles (maternelle, primaire et collège) sont implantées dans la commune. Côté transports en commun, il y a cinq gares à moins de 10 minutes en voiture. On trouve un accès à la nationale N171 à 8 km. On trouve un supermarché, sept commerces et une boulangerie à proximité du bien.
Elle est proposée à l'achat pour 447 500 €.
Prenez contact avec Vincent COUCHAUX (tél : 06-74-86-07-98) pour toute information sur la maison, sur les modalités de vente ou sur les démarches à suivre.

Mentions légales

Terrain proposé par un partenaire foncier selon disponibilités et autorisation de publicité au prix de 188 900 €. Hors droit d'enregistrement et frais de notaire. Maison proposée, avec un contrat de construction de maison individuelle, dans le cadre de la loi du 19/12/1990, au prix de 258 600 € (Hors branchements et raccordements, papiers peints, peintures, revêtement de sol dans les chambres, qui sont chiffrés dans les travaux qui restent à charge du client. Tarif modifiable sans préavis). Étiquette énergie : A. Différents modèles disponibles pour ce terrain. Assurances et garanties du constructeur comprises (RC professionnelle, décennale, dommage ouvrage).

Contactez l'agence de Pornic

02 40 82 59 91

    * Champs obligatoires

    Vos informations sont traitées par HEXAOM et transmises à un conseiller commercial qui vous contactera afin de répondre à votre demande. Les plans et images présentés sur notre site sont la propriété d’HEXAOM et ne peuvent pas être reproduits sans son accord. Pour retrouver notre politique de protection des données personnelles et exercer vos droits conformément à la « loi informatique et liberté » cliquez-ici.