Maison neuve à
Saint-Brevin-les-Pins (44250) Référence : VC2304821_2

Prix du projet : Maison avec Terrain

prix 634 000 €

  • 4 pièces
  • 3 chambres
  • Surface maison 107 m2

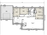
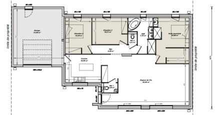
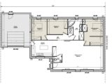
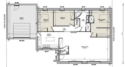
Maison de 4 pièces (107 m²) en vente à Saint-Brevin-les-Pins
PROCHE DE SAINT-NAZAIRE - MAISON 4 PIÈCES NEUVE
En vente à 500m de l'océan Atlantique et à 9 km de Saint-Nazaire, nous sommes ravis de vous présenter à Saint-Brevin-les-Pins (44250), cette maison de 4 pièces de plain-pied de 107 m².
Conçue de plain-pied, elle propose trois chambres, une cuisine et une salle de bains. Cette maison est neuve.
Le terrain du bien est de 971 m².
Plusieurs écoles (maternelle, primaire et collège) sont implantées dans la commune. Niveau transports en commun, il y a cinq gares à moins de 10 minutes en voiture. Il y a un accès à la nationale N171 à 8 km. On trouve un supermarché, des commerces et une boulangerie à proximité de la maison.
Elle est proposée à l'achat pour 634 000 €.
Contactez notre agence (Vincent COUCHAUX : 06-74-86-07-98) pour toute question sur la maison, sur les démarches à suivre et sur les modalités de vente. Donnez vie à vos projets immobiliers avec Maisons Tradilignes Pornic.

Mentions légales

Terrain proposé par un partenaire foncier selon disponibilités et autorisation de publicité au prix de 375 450 €. Hors droit d'enregistrement et frais de notaire. Maison proposée, avec un contrat de construction de maison individuelle, dans le cadre de la loi du 19/12/1990, au prix de 258 550 € (Hors branchements et raccordements, papiers peints, peintures, revêtement de sol dans les chambres, qui sont chiffrés dans les travaux qui restent à charge du client. Tarif modifiable sans préavis). Étiquette énergie : A. Différents modèles disponibles pour ce terrain. Assurances et garanties du constructeur comprises (RC professionnelle, décennale, dommage ouvrage).

Contactez l'agence de Pornic

02 40 82 59 91

    * Champs obligatoires

    Vos informations sont traitées par HEXAOM et transmises à un conseiller commercial qui vous contactera afin de répondre à votre demande. Les plans et images présentés sur notre site sont la propriété d’HEXAOM et ne peuvent pas être reproduits sans son accord. Pour retrouver notre politique de protection des données personnelles et exercer vos droits conformément à la « loi informatique et liberté » cliquez-ici.