Maison neuve à
Rouans (44640) Référence : VC2361776_4

Prix du projet : Maison avec Terrain

prix 256 500 €

  • 4 pièces
  • 3 chambres
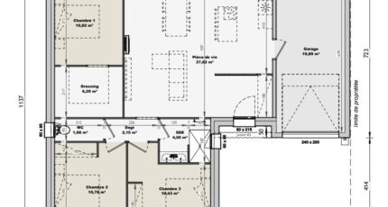
  • Surface maison 84 m2

Maison T4 (84 m²) à vendre à Rouans
IDÉALEMENT SITUÉE - MAISON 4 PIÈCES NEUVE
À vendre : à 20 km de l'océan Atlantique et à quelques kilomètres de Nantes, Maisons Tradilignes Pornic vous propose, idéalement située dans Rouans (44640), cette maison de 4 pièces de plain-pied de 84 m² et de 509 m² de terrain.
Elle est composée de trois chambres, d'une cuisine et d'une salle de bains. Cette maison est neuve.
Cette maison se trouve dans un quartier recherché. L'École Primaire Privée Saint Martin et l'École Primaire Publique Jules Verne sont implantées à moins de 10 minutes , tout comme une crèche. Côté transports en commun, il y a deux gares (Saint-Hilaire-de-Chaléons et Sainte-Pazanne) à moins de 10 minutes en voiture. L'autoroute A82 et les nationales N165, N444 et N844 sont accessibles à moins de 19 km. On trouve un tennis, un commerce, une boulangerie, une épicerie et un bureau de poste dans les environs.
Elle est proposée à l'achat pour 256 500 €.
Contactez Vincent COUCHAUX (06-74-86-07-98) pour toute question sur la maison, sur les modalités de vente ou sur les démarches à suivre.

Mentions légales

Terrain proposé par un partenaire foncier selon disponibilités et autorisation de publicité au prix de 89 500 €. Hors droit d'enregistrement et frais de notaire. Terrain + Maison proposés au prix de 167 000 € (Hors branchements et raccordements, papiers peints, peintures, revêtement de sol dans les chambres. Tarif modifiable sans préavis). Etiquette énergie : A. Différents modèles disponibles pour ce terrain. Assurances et garanties du constructeur (RC professionnelle, décennale, dommage ouvrage, garantie de remboursement de l'acompte, livraison à prix et délai convenu) : https://www.tradilignes.fr/mentions-legales/.

Contactez l'agence de Pornic

02 40 82 59 91

    * Champs obligatoires

    Vos informations sont traitées par HEXAOM et transmises à un conseiller commercial qui vous contactera afin de répondre à votre demande. Les plans et images présentés sur notre site sont la propriété d’HEXAOM et ne peuvent pas être reproduits sans son accord. Pour retrouver notre politique de protection des données personnelles et exercer vos droits conformément à la « loi informatique et liberté » cliquez-ici.