Maison neuve à
Rouans (44640) Référence : VC2314066_3

Prix du projet : Maison avec Terrain

prix 344 000 €

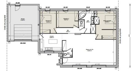
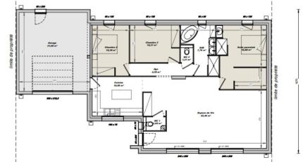
  • 4 pièces
  • 3 chambres
  • Surface maison 107 m2

VENTE : maison T4 (107 m²) à Rouans
PROCHE DE NANTES - MAISON 4 PIÈCES NEUVE
À vendre : à 20 km de l'océan Atlantique et à deux pas de Nantes, nous sommes heureux de vous présenter à Rouans (44640), cette maison de 4 pièces de plain-pied de 107 m² et de 451 m² de terrain.
Conçue de plain-pied, elle dispose de trois chambres, d'une cuisine et d'une salle de bains. Cette maison est neuve.
Il y a l'École Primaire Privée Saint Martin et l'École Primaire Publique Jules Verne à moins de 10 minutes et une structure d'accueil pour les enfants en bas âge. Niveau transports, on trouve les gares Saint-Hilaire-de-Chaléons et Sainte-Pazanne à moins de 10 minutes en voiture. L'autoroute A82 et les nationales N165, N444 et N844 sont accessibles à moins de 19 km. Il y a un tennis, un commerce, une boulangerie, un bureau de poste et une épicerie à proximité du logement.
Son prix de vente est de 344 000 €.
Contactez notre agence (COUCHAUX Vincent : 06-74-86-07-98) pour plus d'informations sur la maison, sur les modalités de vente ou sur les démarches à suivre. Maisons Tradilignes Pornic vous accompagne à toutes les étapes de votre projet et dans tous vos projets immobiliers.

Mentions légales

Terrain proposé par un partenaire foncier selon disponibilités et autorisation de publicité au prix de 85 000 €. Hors droit d'enregistrement et frais de notaire. Maison proposée, avec un contrat de construction de maison individuelle, dans le cadre de la loi du 19/12/1990, au prix de 259 000 € (Hors branchements et raccordements, papiers peints, peintures, revêtement de sol dans les chambres, qui sont chiffrés dans les travaux qui restent à charge du client. Tarif modifiable sans préavis). Étiquette énergie : A. Différents modèles disponibles pour ce terrain. Assurances et garanties du constructeur comprises (RC professionnelle, décennale, dommage ouvrage).

Contactez l'agence de Pornic

02 40 82 59 91

    * Champs obligatoires

    Vos informations sont traitées par HEXAOM et transmises à un conseiller commercial qui vous contactera afin de répondre à votre demande. Les plans et images présentés sur notre site sont la propriété d’HEXAOM et ne peuvent pas être reproduits sans son accord. Pour retrouver notre politique de protection des données personnelles et exercer vos droits conformément à la « loi informatique et liberté » cliquez-ici.