Maison neuve à
Rouans (44640) Référence : VC2306561_3

Prix du projet : Maison avec Terrain

prix 451 500 €

  • 4 pièces
  • 3 chambres
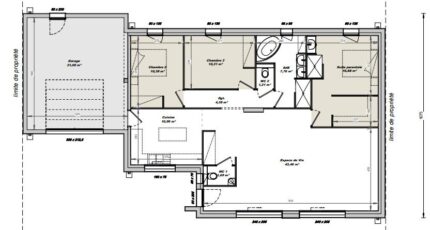
  • Surface maison 107 m2

Rouans : maison de 4 pièces (107 m²) en vente
MAISON 4 PIÈCES NEUVE - PROCHE DE NANTES
À vendre : Proche du littoral atlantique et à 22 km de Nantes, Maisons Tradilignes Pornic vous présente cette maison de 4 pièces de plain-pied de 107 m² et de 3 128 m² de terrain à Rouans (44640). Son intérieur offre trois chambres, une cuisine et une salle de bains.
Cette maison est neuve.
L'École Primaire Privée Saint Martin et l'École Primaire Publique Jules Verne sont implantées à moins de 10 minutes , tout comme une structure d'accueil pour les tout-petits. Côté transports en commun, il y a deux gares (Saint-Hilaire-de-Chaléons et Sainte-Pazanne) à moins de 10 minutes en voiture. L'autoroute A82 et les nationales N165, N444 et N844 sont accessibles à moins de 19 km. On trouve un tennis, un commerce, une boulangerie, un bureau de poste et une épicerie à quelques minutes à peine.
Elle est à vendre pour la somme de 451 500 €.
N'hésitez pas à prendre contact avec notre agence (COUCHAUX Vincent : 06-74-86-07-98) pour toute information sur cette maison. Maisons Tradilignes Pornic est là pour vous accompagner dans tous vos projets immobiliers.

Mentions légales

Terrain proposé par un partenaire foncier selon disponibilités et autorisation de publicité au prix de 192 875 €. Hors droit d'enregistrement et frais de notaire. Maison proposée, avec un contrat de construction de maison individuelle, dans le cadre de la loi du 19/12/1990, au prix de 258 625 € (Hors branchements et raccordements, papiers peints, peintures, revêtement de sol dans les chambres, qui sont chiffrés dans les travaux qui restent à charge du client. Tarif modifiable sans préavis). Étiquette énergie : A. Différents modèles disponibles pour ce terrain. Assurances et garanties du constructeur comprises (RC professionnelle, décennale, dommage ouvrage).

Contactez l'agence de Pornic

02 40 82 59 91

    * Champs obligatoires

    Vos informations sont traitées par HEXAOM et transmises à un conseiller commercial qui vous contactera afin de répondre à votre demande. Les plans et images présentés sur notre site sont la propriété d’HEXAOM et ne peuvent pas être reproduits sans son accord. Pour retrouver notre politique de protection des données personnelles et exercer vos droits conformément à la « loi informatique et liberté » cliquez-ici.