Maison neuve à
Rouans (44640) Référence : VC2306561_2

Prix du projet : Maison avec Terrain

prix 507 000 €

  • 8 pièces
  • 3 chambres
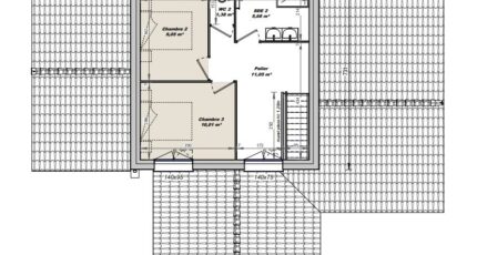
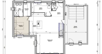
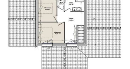
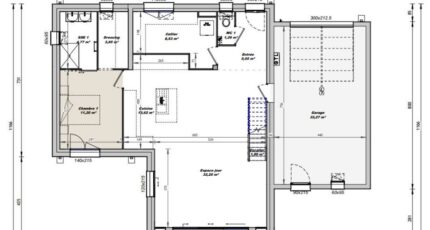
  • Surface maison 119 m2

Rouans : maison F8 (119 m²) à vendre
MAISON 8 PIÈCES NEUVE - PROCHE DE NANTES
En vente : située à 20 km de l'océan Atlantique et à deux pas de Nantes, notre agence Maisons Tradilignes Pornic est ravie de vous proposer cette maison de 8 pièces de 119 m² à Rouans (44640).
C'est une maison de 2 niveaux. Son intérieur dispose de trois chambres, d'une cuisine et de deux salles de bains. Cette maison est neuve.
Le terrain du bien est de 3 128 m².
Il y a l'École Primaire Privée Saint Martin et l'École Primaire Publique Jules Verne à moins de 10 minutes et une structure d'accueil pour les tout-petits. Niveau transports, on trouve deux gares (Saint-Hilaire-de-Chaléons et Sainte-Pazanne) à moins de 10 minutes en voiture. L'autoroute A82 et les nationales N165, N444 et N844 sont accessibles à moins de 19 km. Il y a un tennis, un commerce, une boulangerie, un bureau de poste et une épicerie à quelques minutes.
Elle est à vendre pour la somme de 507 000 €.
Prenez contact avec Vincent COUCHAUX (tél : 06-74-86-07-98) pour toute question sur cette maison, sur les démarches à suivre ou sur les modalités de vente. Faites de vos projets immobiliers une réalité avec Maisons Tradilignes Pornic.

Mentions légales

Terrain proposé par un partenaire foncier selon disponibilités et autorisation de publicité au prix de 192 875 €. Hors droit d'enregistrement et frais de notaire. Maison proposée, avec un contrat de construction de maison individuelle, dans le cadre de la loi du 19/12/1990, au prix de 314 125 € (Hors branchements et raccordements, papiers peints, peintures, revêtement de sol dans les chambres, qui sont chiffrés dans les travaux qui restent à charge du client. Tarif modifiable sans préavis). Étiquette énergie : A. Différents modèles disponibles pour ce terrain. Assurances et garanties du constructeur comprises (RC professionnelle, décennale, dommage ouvrage).

Contactez l'agence de Pornic

02 40 82 59 91

    * Champs obligatoires

    Vos informations sont traitées par HEXAOM et transmises à un conseiller commercial qui vous contactera afin de répondre à votre demande. Les plans et images présentés sur notre site sont la propriété d’HEXAOM et ne peuvent pas être reproduits sans son accord. Pour retrouver notre politique de protection des données personnelles et exercer vos droits conformément à la « loi informatique et liberté » cliquez-ici.