Maison neuve à
Port-Saint-Père (44710) Référence : VC2397663_1

Prix du projet : Maison avec Terrain

prix 265 000 €

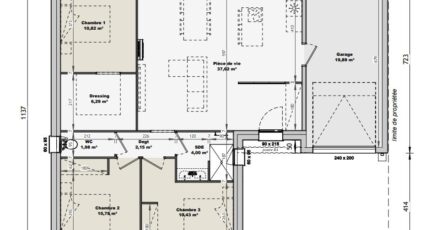
  • 4 pièces
  • 3 chambres
  • Surface maison 84 m2

Port-Saint-Père : maison T4 (84 m²) en vente
CENTRE-VILLE - MAISON 4 PIÈCES NEUVE
À 20 km de l'océan Atlantique et à 19 km de Nantes, nous vous présentons en vente, dans le centre de Port-Saint-Père (44710), cette maison de 4 pièces de plain-pied de 84 m². Conçue de plain-pied, elle comporte trois chambres, une cuisine et une salle de bains.
Le terrain de la propriété s'étend sur 455 m².
Cette maison est neuve.
On trouve l'École Primaire Publique les Hirondelles et l'École Primaire Privée l'Alliance à moins de 10 minutes à pied. Niveau transports en commun, il y a cinq gares à moins de 10 minutes en voiture. Des autoroutes et des nationales sont accessibles à moins de 20 km. On trouve deux commerces, une boulangerie, un supermarché et un bureau de poste à proximité.
Son prix de vente est de 265 000 €.
Contactez Vincent COUCHAUX (tél : 06-74-86-07-98) pour toute information sur la maison, sur les démarches à suivre ou sur les modalités de vente. Donnez vie à vos projets immobiliers avec Maisons Tradilignes Pornic.

Mentions légales

Terrain proposé par un partenaire foncier selon disponibilités et autorisation de publicité au prix de 96 872 €. Hors droit d'enregistrement et frais de notaire. Terrain + Maison proposés au prix de 265 000 € (Hors branchements et raccordements, papiers peints, peintures, revêtement de sol dans les chambres. Tarif modifiable sans préavis). Etiquette énergie : A. Différents modèles disponibles pour ce terrain. Assurances et garanties du constructeur (RC professionnelle, décennale, dommage ouvrage, garantie de remboursement de l'acompte, livraison à prix et délai convenu) : https://www.tradilignes.fr/mentions-legales/.

Contactez l'agence de Pornic

02 40 82 59 91

    * Champs obligatoires

    Vos informations sont traitées par HEXAOM et transmises à un conseiller commercial qui vous contactera afin de répondre à votre demande. Les plans et images présentés sur notre site sont la propriété d’HEXAOM et ne peuvent pas être reproduits sans son accord. Pour retrouver notre politique de protection des données personnelles et exercer vos droits conformément à la « loi informatique et liberté » cliquez-ici.