Maison neuve à
Pornic (44210) Référence : VC2404562_3

Prix du projet : Maison avec Terrain

prix 520 000 €

  • 8 pièces
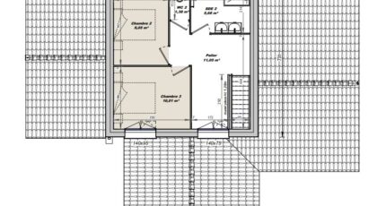
  • 3 chambres
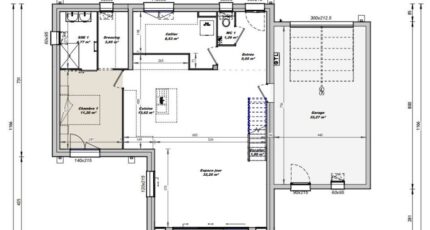
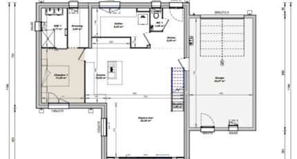
  • Surface maison 119 m2

VENTE : maison de 8 pièces (119 m²) à Pornic
MAISON 8 PIÈCES NEUVE - PROCHE DE SAINT-NAZAIRE
En vente : à 2 km de la côte atlantique et à 22 km de Saint-Nazaire, à Pornic (44210), votre agence Maisons Tradilignes Pornic est heureuse de vous présenter cette maison de 8 pièces de 119 m² et de 655 m² de terrain.
Cette maison possède 2 niveaux. Elle propose trois chambres, une cuisine et deux salles de bains. La maison est neuve.
Il y a cinq établissements scolaires à moins de 10 minutes . Niveau transports, on trouve la gare Pornic à proximité. Il y a un port de plaisance, des commerces, des boulangeries, un supermarché, trois poissonneries et une supérette à quelques minutes.
Elle est à vendre pour la somme de 520 000 €.
N'hésitez pas à prendre contact avec notre agence (Vincent COUCHAUX : 06-74-86-07-98) pour tout renseignement sur ce bien, sur les démarches à suivre ou sur les modalités de vente. Faites de vos projets immobiliers une réalité avec Maisons Tradilignes Pornic.

Mentions légales

Terrain proposé par un partenaire foncier selon disponibilités et autorisation de publicité au prix de 203 350 €. Hors droit d'enregistrement et frais de notaire. Terrain + Maison proposés au prix de 520 000 € (Hors branchements et raccordements, papiers peints, peintures, revêtement de sol dans les chambres. Tarif modifiable sans préavis). Etiquette énergie : A. Différents modèles disponibles pour ce terrain. Assurances et garanties du constructeur (RC professionnelle, décennale, dommage ouvrage, garantie de remboursement de l'acompte, livraison à prix et délai convenu) : https://www.tradilignes.fr/mentions-legales/.

Contactez l'agence de Pornic

02 40 82 59 91

    * Champs obligatoires

    Vos informations sont traitées par HEXAOM et transmises à un conseiller commercial qui vous contactera afin de répondre à votre demande. Les plans et images présentés sur notre site sont la propriété d’HEXAOM et ne peuvent pas être reproduits sans son accord. Pour retrouver notre politique de protection des données personnelles et exercer vos droits conformément à la « loi informatique et liberté » cliquez-ici.