Maison neuve à
Pornic (44210) Référence : VC2404562_2

Prix du projet : Maison avec Terrain

prix 465 000 €

  • 4 pièces
  • 3 chambres
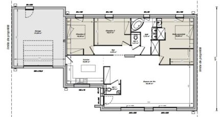
  • Surface maison 107 m2

Maison de 4 pièces (107 m²) à vendre à Pornic
MAISON 4 PIÈCES NEUVE - PROCHE DE SAINT-NAZAIRE
En vente : localisée sur la côte atlantique et à quelques kilomètres de Saint-Nazaire, Maisons Tradilignes Pornic vous propose cette maison de 4 pièces de plain-pied de 107 m² à Pornic (44210).
Elle comporte trois chambres, une cuisine et une salle de bains. Cette maison est neuve.
Le terrain de la propriété s'étend sur 655 m².
Il y a cinq établissements scolaires à moins de 10 minutes . Niveau transports en commun, on trouve la gare Pornic à quelques pas du bien. Il y a un port de plaisance, des commerces, des boulangeries, un supermarché, trois poissonneries et un bureau de poste à proximité de la maison.
Il est proposé à l'achat pour 465 000 €.
Contactez Vincent COUCHAUX (tél : 06-74-86-07-98) pour tout renseignement sur la maison et sur les démarches à suivre. Concrétisez vos projets immobiliers avec Maisons Tradilignes Pornic.

Mentions légales

Terrain proposé par un partenaire foncier selon disponibilités et autorisation de publicité au prix de 203 350 €. Hors droit d'enregistrement et frais de notaire. Terrain + Maison proposés au prix de 465 000 € (Hors branchements et raccordements, papiers peints, peintures, revêtement de sol dans les chambres. Tarif modifiable sans préavis). Etiquette énergie : A. Différents modèles disponibles pour ce terrain. Assurances et garanties du constructeur (RC professionnelle, décennale, dommage ouvrage, garantie de remboursement de l'acompte, livraison à prix et délai convenu) : https://www.tradilignes.fr/mentions-legales/.

Contactez l'agence de Pornic

02 40 82 59 91

    * Champs obligatoires

    Vos informations sont traitées par HEXAOM et transmises à un conseiller commercial qui vous contactera afin de répondre à votre demande. Les plans et images présentés sur notre site sont la propriété d’HEXAOM et ne peuvent pas être reproduits sans son accord. Pour retrouver notre politique de protection des données personnelles et exercer vos droits conformément à la « loi informatique et liberté » cliquez-ici.