Maison neuve à
Pornic (44210) Référence : VC2401430_2

Prix du projet : Maison avec Terrain

prix 635 000 €

  • 4 pièces
  • 3 chambres
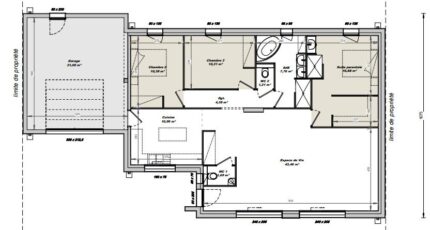
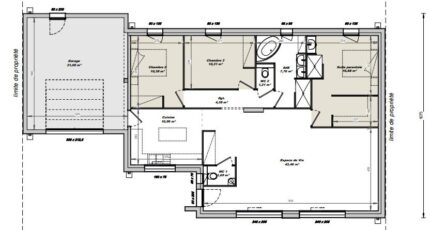
  • Surface maison 107 m2

Pornic : maison T4 (107 m²) à vendre
MAISON 4 PIÈCES NEUVE - PROCHE DE SAINT-NAZAIRE
À vendre : à 2km de l'océan Atlantique et à deux pas de Saint-Nazaire, nous vous présentons cette maison de 4 pièces de plain-pied de 107 m² et de 1 016 m² de terrain à Pornic (44210).
Elle se divise en trois chambres, une cuisine et une salle de bains. Cette maison est neuve.
Il y a cinq établissements scolaires à moins de 10 minutes . Côté transports, on trouve la gare Pornic juste à côté. Il y a un port de plaisance, des commerces, des boulangeries, un supermarché, trois épiceries et un bureau de poste dans les environs.
Son prix de vente est de 635 000 €.
N'hésitez pas à prendre contact avec Vincent COUCHAUX (tél : 06-74-86-07-98) pour tout renseignement sur cette maison, sur les démarches à suivre ou sur les modalités de vente.

Mentions légales

Terrain proposé par un partenaire foncier selon disponibilités et autorisation de publicité au prix de 373 300 €. Hors droit d'enregistrement et frais de notaire. Terrain + Maison proposés au prix de 635 000 € (Hors branchements et raccordements, papiers peints, peintures, revêtement de sol dans les chambres. Tarif modifiable sans préavis). Etiquette énergie : A. Différents modèles disponibles pour ce terrain. Assurances et garanties du constructeur (RC professionnelle, décennale, dommage ouvrage, garantie de remboursement de l'acompte, livraison à prix et délai convenu) : https://www.tradilignes.fr/mentions-legales/.

Contactez l'agence de Pornic

02 40 82 59 91

    * Champs obligatoires

    Vos informations sont traitées par HEXAOM et transmises à un conseiller commercial qui vous contactera afin de répondre à votre demande. Les plans et images présentés sur notre site sont la propriété d’HEXAOM et ne peuvent pas être reproduits sans son accord. Pour retrouver notre politique de protection des données personnelles et exercer vos droits conformément à la « loi informatique et liberté » cliquez-ici.