Maison neuve à
Pornic (44210) Référence : VC2349713_2

Prix du projet : Maison avec Terrain

prix 758 580 €

  • 4 pièces
  • 3 chambres
  • Surface maison 107 m2

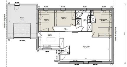
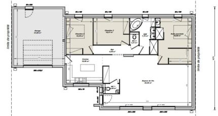
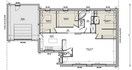
Maison de 4 pièces (107 m²) en vente à Pornic
EMPLACEMENT PRIVILÉGIÉ - MAISON 4 PIÈCES NEUVE
À vendre : localisée sur le littoral atlantique et à deux pas de Saint-Nazaire, bénéficiant d'un emplacement d'exception dans Pornic (44210), nous sommes ravis de vous proposer cette maison de 4 pièces de plain-pied de 107 m² et de 1 213 m² de terrain.
Son intérieur dispose de trois chambres, d'une cuisine et d'une salle de bains. Cette maison est neuve.
Cette maison est située dans un quartier attractif. Il y a cinq établissements scolaires à moins de 10 minutes . Côté transports en commun, on trouve la gare Pornic juste à côté. Il y a un port de plaisance, des commerces, des boulangeries, un supermarché, trois poissonneries et trois épiceries à proximité du logement.
Elle est à vendre pour la somme de 758 580 €.
Contactez Vincent COUCHAUX (tél : 06-74-86-07-98) pour toute information sur la propriété, sur les modalités de vente ou sur les démarches à suivre.

Mentions légales

Terrain proposé par un partenaire foncier selon disponibilités et autorisation de publicité au prix de 500 000 €. Hors droit d'enregistrement et frais de notaire. Maison proposée, avec un contrat de construction de maison individuelle, dans le cadre de la loi du 19/12/1990, au prix de 258 580 € (Hors branchements et raccordements, papiers peints, peintures, revêtement de sol dans les chambres, qui sont chiffrés dans les travaux qui restent à charge du client. Tarif modifiable sans préavis). Étiquette énergie : A. Différents modèles disponibles pour ce terrain. Assurances et garanties du constructeur comprises (RC professionnelle, décennale, dommage ouvrage).

Contactez l'agence de Pornic

02 40 82 59 91

    * Champs obligatoires

    Vos informations sont traitées par HEXAOM et transmises à un conseiller commercial qui vous contactera afin de répondre à votre demande. Les plans et images présentés sur notre site sont la propriété d’HEXAOM et ne peuvent pas être reproduits sans son accord. Pour retrouver notre politique de protection des données personnelles et exercer vos droits conformément à la « loi informatique et liberté » cliquez-ici.