Maison neuve à
Pornic (44210) Référence : VC2324470_3

Prix du projet : Maison avec Terrain

prix 446 500 €

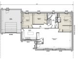
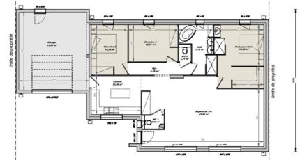
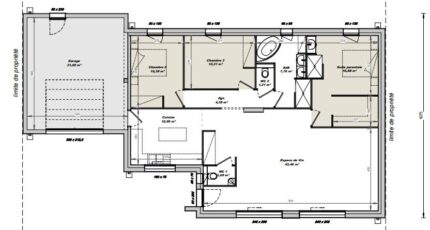
  • 4 pièces
  • 3 chambres
  • Surface maison 107 m2

Pornic : maison de 4 pièces (107 m²) à vendre
PROCHE DE SAINT-NAZAIRE - MAISON 4 PIÈCES NEUVE
À vendre au bord de l'océan Atlantique et à deux pas de Saint-Nazaire, nous sommes ravis de vous présenter cette maison de 4 pièces de plain-pied de 107 m² et de 750 m² de terrain à Pornic (44210).
Son intérieur comporte trois chambres, une cuisine et une salle de bains. La maison est neuve.
Il y a cinq établissements scolaires à moins de 10 minutes . Niveau transports, on trouve la gare Pornic dans un rayon de 1 km. Il y a un port de plaisance, des commerces, des boulangeries, un supermarché, une supérette et trois poissonneries dans les environs.
Elle est à vendre pour la somme de 446 500 €.
Contactez Vincent COUCHAUX (tél : 06-74-86-07-98) pour toute information sur cette maison. Donnez vie à vos projets immobiliers avec Maisons Tradilignes Pornic.

Mentions légales

Terrain proposé par un partenaire foncier selon disponibilités et autorisation de publicité au prix de 187 900 €. Hors droit d'enregistrement et frais de notaire. Terrain + Maison proposés au prix de 446 500 € (Hors branchements et raccordements, papiers peints, peintures, revêtement de sol dans les chambres. Tarif modifiable sans préavis). Etiquette énergie : A. Différents modèles disponibles pour ce terrain. Assurances et garanties du constructeur (RC professionnelle, décennale, dommage ouvrage, garantie de remboursement de l'acompte, livraison à prix et délai convenu) : https://www.tradilignes.fr/mentions-legales/.

Contactez l'agence de Pornic

02 40 82 59 91

    * Champs obligatoires

    Vos informations sont traitées par HEXAOM et transmises à un conseiller commercial qui vous contactera afin de répondre à votre demande. Les plans et images présentés sur notre site sont la propriété d’HEXAOM et ne peuvent pas être reproduits sans son accord. Pour retrouver notre politique de protection des données personnelles et exercer vos droits conformément à la « loi informatique et liberté » cliquez-ici.