Maison neuve à
Pornic (44210) Référence : VC2299694_2

Prix du projet : Maison avec Terrain

prix 443 000 €

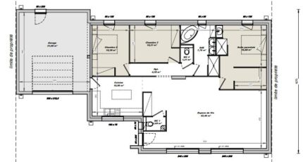
  • 4 pièces
  • 3 chambres
  • Surface maison 107 m2

Pornic : maison F4 (107 m²) en vente
PROCHE DE SAINT-NAZAIRE - MAISON 4 PIÈCES NEUVE
À 2 km de la côte atlantique et à deux pas de Saint-Nazaire, Maisons Tradilignes Pornic vous propose cette maison de 4 pièces de plain-pied de 107 m² en vente à Pornic (44210). Conçue de plain-pied, elle comporte trois chambres, une cuisine et une salle de bains.
Le terrain de la propriété s'étend sur 484 m².
Cette maison est neuve.
Il y a cinq établissements scolaires à moins de 10 minutes . Niveau transports en commun, on trouve la gare Pornic dans les environs. Il y a un port de plaisance, des commerces, des boulangeries, un supermarché, une supérette et un bureau de poste à quelques minutes.
Elle est proposée à l'achat pour 443 000 €.
Contactez notre agence (Vincent COUCHAUX : 06-74-86-07-98) pour plus de renseignements sur cette maison et sur les démarches à suivre. Concrétisez vos projets immobiliers avec Maisons Tradilignes Pornic.

Mentions légales

Terrain proposé par un partenaire foncier selon disponibilités et autorisation de publicité au prix de 184 300 €. Hors droit d'enregistrement et frais de notaire. Maison proposée, avec un contrat de construction de maison individuelle, dans le cadre de la loi du 19/12/1990, au prix de 258 700 € (Hors branchements et raccordements, papiers peints, peintures, revêtement de sol dans les chambres, qui sont chiffrés dans les travaux qui restent à charge du client. Tarif modifiable sans préavis). Étiquette énergie : A. Différents modèles disponibles pour ce terrain. Assurances et garanties du constructeur comprises (RC professionnelle, décennale, dommage ouvrage).

Contactez l'agence de Pornic

02 40 82 59 91

    * Champs obligatoires

    Vos informations sont traitées par HEXAOM et transmises à un conseiller commercial qui vous contactera afin de répondre à votre demande. Les plans et images présentés sur notre site sont la propriété d’HEXAOM et ne peuvent pas être reproduits sans son accord. Pour retrouver notre politique de protection des données personnelles et exercer vos droits conformément à la « loi informatique et liberté » cliquez-ici.