Maison neuve à
Pornic (44210) Référence : VC2291649_3

Prix du projet : Maison avec Terrain

prix 587 000 €

  • 6 pièces
  • 3 chambres
  • Surface maison 98 m2

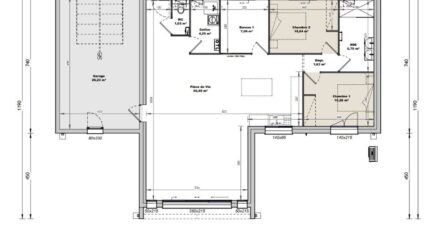
Maison de 6 pièces (98 m²) en vente à Pornic
IDÉALEMENT SITUÉE - MAISON 6 PIÈCES NEUVE
À vendre : située au bord de l'océan Atlantique et à deux pas de Saint-Nazaire, Maisons Tradilignes Pornic vous présente cette maison de 6 pièces de 98 m² idéalement située dans Pornic (44210). Elle se divise en trois chambres, une cuisine et une salle de bains.
Le terrain du bien s'étend sur 602 m².
C'est une maison neuve.
Cette maison est située dans un quartier recherché. Il y a cinq établissements scolaires à moins de 10 minutes . Niveau transports, on trouve la gare Pornic dans un rayon de 1 km. Il y a un port de plaisance, des commerces, des boulangeries, un supermarché, trois épiceries et un bureau de poste à proximité de la maison.
Elle est à vendre pour la somme de 587 000 €.
Contactez notre agence (COUCHAUX Vincent : 06-74-86-07-98) pour tout renseignement sur la maison ou sur les modalités de vente. Donnez vie à vos projets immobiliers avec Maisons Tradilignes Pornic.

Mentions légales

Terrain proposé par un partenaire foncier selon disponibilités et autorisation de publicité au prix de 350 000 €. Hors droit d'enregistrement et frais de notaire. Terrain + Maison proposés au prix de 237 000 € (Hors branchements et raccordements, papiers peints, peintures, revêtement de sol dans les chambres. Tarif modifiable sans préavis). Etiquette énergie : A. Différents modèles disponibles pour ce terrain. Assurances et garanties du constructeur (RC professionnelle, décennale, dommage ouvrage, garantie de remboursement de l'acompte, livraison à prix et délai convenu) : https://www.tradilignes.fr/mentions-legales/.

Contactez l'agence de Pornic

02 40 82 59 91

    * Champs obligatoires

    Vos informations sont traitées par HEXAOM et transmises à un conseiller commercial qui vous contactera afin de répondre à votre demande. Les plans et images présentés sur notre site sont la propriété d’HEXAOM et ne peuvent pas être reproduits sans son accord. Pour retrouver notre politique de protection des données personnelles et exercer vos droits conformément à la « loi informatique et liberté » cliquez-ici.