Maison neuve à
Pornic (44210) Référence : VC2291649_2

Prix du projet : Maison avec Terrain

prix 610 000 €

  • 4 pièces
  • 3 chambres
  • Surface maison 107 m2

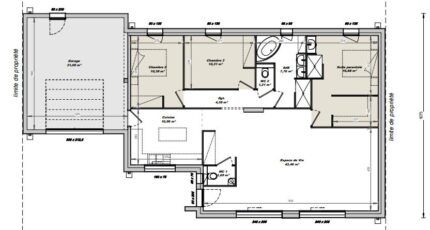
VENTE d'une maison de 4 pièces (107 m²) à Pornic
IDÉALEMENT SITUÉE - MAISON 4 PIÈCES NEUVE
À vendre sur le littoral atlantique et à deux pas de Saint-Nazaire, nous sommes heureux de vous présenter cette maison de 4 pièces de plain-pied de 107 m², idéalement située dans Pornic (44210).
Elle inclut trois chambres, une cuisine et une salle de bains. La maison est neuve.
Le terrain de la propriété est de 602 m².
Cette maison se situe dans un quartier prisé. Cinq établissements scolaires se trouvent à moins de 10 minutes . Niveau transports, il y a la gare Pornic dans un rayon de 1 km. On trouve un port de plaisance, des commerces, des boulangeries, un supermarché, un bureau de poste et trois poissonneries dans les environs.
Elle est à vendre pour la somme de 610 000 €.
Contactez notre agence (Vincent COUCHAUX : 06-74-86-07-98) pour toute question sur la maison, sur les modalités de vente et sur les démarches à suivre. Faites de vos projets immobiliers une réalité avec Maisons Tradilignes Pornic.

Mentions légales

Terrain proposé par un partenaire foncier selon disponibilités et autorisation de publicité au prix de 350 000 €. Hors droit d'enregistrement et frais de notaire. Terrain + Maison proposés au prix de 260 000 € (Hors branchements et raccordements, papiers peints, peintures, revêtement de sol dans les chambres. Tarif modifiable sans préavis). Etiquette énergie : A. Différents modèles disponibles pour ce terrain. Assurances et garanties du constructeur (RC professionnelle, décennale, dommage ouvrage, garantie de remboursement de l'acompte, livraison à prix et délai convenu) : https://www.tradilignes.fr/mentions-legales/.

Contactez l'agence de Pornic

02 40 82 59 91

    * Champs obligatoires

    Vos informations sont traitées par HEXAOM et transmises à un conseiller commercial qui vous contactera afin de répondre à votre demande. Les plans et images présentés sur notre site sont la propriété d’HEXAOM et ne peuvent pas être reproduits sans son accord. Pour retrouver notre politique de protection des données personnelles et exercer vos droits conformément à la « loi informatique et liberté » cliquez-ici.