Maison neuve à
Mouilleron-le-Captif (85000) Référence : MC2273679_6

Prix du projet : Maison avec Terrain

prix 182 210 €

  • 3 pièces
  • 2 chambres
  • Surface maison 67 m2

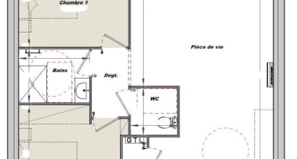
Mouilleron-le-Captif : maison T3 (67 m²) en vente
PROCHE DE LA ROCHE-SUR-YON - MAISON 3 PIÈCES NEUVE
En vente : localisée à 36 km de la côte atlantique et à deux pas de La Roche-sur-Yon, venez découvrir à Mouilleron-le-Captif (85000), cette maison de 3 pièces de plain-pied de 67 m².
Elle offre deux chambres, une cuisine et une salle de bains. Cette maison est neuve.
Le terrain de la propriété est de 446 m².
Il y a l'École Primaire Privée St Jean Baptiste, l'École Élémentaire Publique Crayons de Soleil et l'École Maternelle Publique les Crayons de Soleil à moins de 10 minutes à pied et une crèche. Côté transports en commun, on trouve les gares La Roche-sur-Yon et Belleville-sur-Vie à moins de 10 minutes en voiture. L'autoroute A87 est accessible à 10 km. Il y a cinq commerces, deux boulangeries et un bureau de poste à quelques minutes à peine.
Son prix de vente est de 182 210 €.
Contactez notre agence (CASTELOT Marie : 02-51-46-19-69) pour obtenir de plus amples renseignements sur la maison. Maisons Tradilignes La Roche-sur-Yon vous accompagne à toutes les étapes de l'achat et dans toutes vos démarches.

Mentions légales

Terrain proposé par un partenaire foncier selon disponibilités et autorisation de publicité au prix de 65 900 €. Hors droit d'enregistrement et frais de notaire. Maison proposée, avec un contrat de construction de maison individuelle, dans le cadre de la loi du 19/12/1990, au prix de 116 310 € (Hors branchements et raccordements, papiers peints, peintures, revêtement de sol dans les chambres, qui sont chiffrés dans les travaux qui restent à charge du client. Tarif modifiable sans préavis). Étiquette énergie : A. Différents modèles disponibles pour ce terrain. Assurances et garanties du constructeur comprises (RC professionnelle, décennale, dommage ouvrage).

Contactez l'agence de La Roche-sur-Yon

02 51 69 25 92

    * Champs obligatoires

    Vos informations sont traitées par HEXAOM et transmises à un conseiller commercial qui vous contactera afin de répondre à votre demande. Les plans et images présentés sur notre site sont la propriété d’HEXAOM et ne peuvent pas être reproduits sans son accord. Pour retrouver notre politique de protection des données personnelles et exercer vos droits conformément à la « loi informatique et liberté » cliquez-ici.