Maison neuve à
Pornic (44210) Référence : VC2410684_2

Prix du projet : Maison avec Terrain

prix 400 000 €

  • 4 pièces
  • 3 chambres
  • Surface maison 107 m2

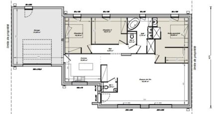
Maison de 4 pièces (107 m²) en vente au Clion-sur-Mer
MAISON 4 PIÈCES NEUVE
En vente à 3 km de la côte atlantique, au Clion-sur-Mer (44210), nous sommes ravis de vous présenter cette maison de 4 pièces de plain-pied de 107 m² et de 438 m² de terrain.
Conçue de plain-pied, elle propose trois chambres, une cuisine et une salle de bains. Cette maison est neuve.
L'École Primaire Privée Sainte Victoire et l'École Primaire Publique les Nondales sont implantées à moins de 10 minutes. Côté transports en commun, on trouve les gares Pornic, La Bernerie-en-Retz et Les Moutiers-en-Retz à moins de 10 minutes en voiture. Il y a une bibliothèque, un tennis, deux commerces et une boucherie-charcuterie dans les environs.
Son prix de vente est de 400 000 €.
N'hésitez pas à prendre contact avec notre agence (COUCHAUX Vincent : 06-74-86-07-98) pour plus d'informations sur la maison ou sur les modalités de vente.

Mentions légales

Terrain proposé par un partenaire foncier selon disponibilités et autorisation de publicité au prix de 138 450 €. Hors droit d'enregistrement et frais de notaire. Terrain + Maison proposés au prix de 400 000 € (Hors branchements et raccordements, papiers peints, peintures, revêtement de sol dans les chambres. Tarif modifiable sans préavis). Etiquette énergie : A. Différents modèles disponibles pour ce terrain. Assurances et garanties du constructeur (RC professionnelle, décennale, dommage ouvrage, garantie de remboursement de l'acompte, livraison à prix et délai convenu) : https://www.tradilignes.fr/mentions-legales/.

Contactez l'agence de Pornic

02 40 82 59 91

    * Champs obligatoires

    Vos informations sont traitées par HEXAOM et transmises à un conseiller commercial qui vous contactera afin de répondre à votre demande. Les plans et images présentés sur notre site sont la propriété d’HEXAOM et ne peuvent pas être reproduits sans son accord. Pour retrouver notre politique de protection des données personnelles et exercer vos droits conformément à la « loi informatique et liberté » cliquez-ici.