Maison neuve à
Pornic (44210) Référence : VC2410684_1

Prix du projet : Maison avec Terrain

prix 310 000 €

  • 4 pièces
  • 3 chambres
  • Surface maison 84 m2

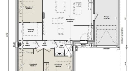
VENTE d'une maison F4 (84 m²) au Clion-sur-Mer
MAISON 4 PIÈCES NEUVE
À 3 km de la côte atlantique, notre agence Maisons Tradilignes Pornic est heureuse de vous présenter cette maison de 4 pièces de plain-pied de 84 m² au Clion-sur-Mer (44210).
Elle propose trois chambres, une cuisine et une salle de bains. Cette maison est neuve.
Le terrain du bien s'étend sur 438 m².
Il y a l'École Primaire Privée Sainte Victoire et l'École Primaire Publique les Nondales à moins de 10 minutes . Côté transports en commun, on trouve trois gares (Pornic, La Bernerie-en-Retz et Les Moutiers-en-Retz) à moins de 10 minutes en voiture. Il y a une bibliothèque, un tennis, deux commerces et une boucherie-charcuterie à quelques minutes du logement.
Elle est proposée à l'achat pour 310 000 €.
Prenez contact avec Vincent COUCHAUX (06-74-86-07-98) pour toute question sur cette maison ou sur les démarches à suivre. Concrétisez vos projets immobiliers avec Maisons Tradilignes Pornic.

Mentions légales

Terrain proposé par un partenaire foncier selon disponibilités et autorisation de publicité au prix de 138 450 €. Hors droit d'enregistrement et frais de notaire. Terrain + Maison proposés au prix de 310 000 € (Hors branchements et raccordements, papiers peints, peintures, revêtement de sol dans les chambres. Tarif modifiable sans préavis). Etiquette énergie : A. Différents modèles disponibles pour ce terrain. Assurances et garanties du constructeur (RC professionnelle, décennale, dommage ouvrage, garantie de remboursement de l'acompte, livraison à prix et délai convenu) : https://www.tradilignes.fr/mentions-legales/.

Contactez l'agence de Pornic

02 40 82 59 91

    * Champs obligatoires

    Vos informations sont traitées par HEXAOM et transmises à un conseiller commercial qui vous contactera afin de répondre à votre demande. Les plans et images présentés sur notre site sont la propriété d’HEXAOM et ne peuvent pas être reproduits sans son accord. Pour retrouver notre politique de protection des données personnelles et exercer vos droits conformément à la « loi informatique et liberté » cliquez-ici.