Maison neuve à
La Plaine-sur-Mer (44770) Référence : VC2432248_3

Prix du projet : Maison avec Terrain

prix 370 000 €

  • 4 pièces
  • 3 chambres
  • Surface maison 107 m2

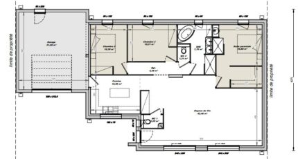
VENTE : maison F4 (107 m²) à La Plaine-sur-Mer
PROCHE DE SAINT-NAZAIRE - MAISON 4 PIÈCES NEUVE
À 1 km de l'océan Atlantique et à 16 km de Saint-Nazaire, nous sommes heureux de vous présenter cette maison de 4 pièces de plain-pied de 107 m² et de 324 m² de terrain à La Plaine-sur-Mer (44770).
Conçue de plain-pied, elle comporte trois chambres, une cuisine et une salle de bains. Cette maison est neuve.
L'École Primaire Publique René Cercle et l'École Primaire Privée Notre-Dame sont implantées à moins de 10 minutes . Côté transports en commun, il y a la gare Pornic à moins de 10 minutes en voiture. La nationale N171 est accessible à 19 km. On trouve un tennis, une bibliothèque, deux boulangeries, trois commerces, un supermarché, un bureau de poste et une boucherie-charcuterie à proximité du bien.
Elle est proposée à l'achat pour 370 000 €.
Contactez notre agence (COUCHAUX Vincent : 06-74-86-07-98) pour tout renseignement sur la maison ou sur les démarches à suivre. Maisons Tradilignes Pornic est là pour vous accompagner à toutes les étapes de l'achat.

Mentions légales

Terrain proposé par un partenaire foncier selon disponibilités et autorisation de publicité au prix de 109 500 €. Hors droit d'enregistrement et frais de notaire. Terrain + Maison proposés au prix de 370 000 € (Hors branchements et raccordements, papiers peints, peintures, revêtement de sol dans les chambres. Tarif modifiable sans préavis). Etiquette énergie : A. Différents modèles disponibles pour ce terrain. Assurances et garanties du constructeur (RC professionnelle, décennale, dommage ouvrage, garantie de remboursement de l'acompte, livraison à prix et délai convenu) : https://www.tradilignes.fr/mentions-legales/.

Contactez l'agence de Pornic

02 40 82 59 91

    * Champs obligatoires

    Vos informations sont traitées par HEXAOM et transmises à un conseiller commercial qui vous contactera afin de répondre à votre demande. Les plans et images présentés sur notre site sont la propriété d’HEXAOM et ne peuvent pas être reproduits sans son accord. Pour retrouver notre politique de protection des données personnelles et exercer vos droits conformément à la « loi informatique et liberté » cliquez-ici.