Maison neuve à
La Plaine-sur-Mer (44770) Référence : VC2383915_2

Prix du projet : Maison avec Terrain

prix 457 000 €

  • 4 pièces
  • 3 chambres
  • Surface maison 107 m2

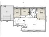
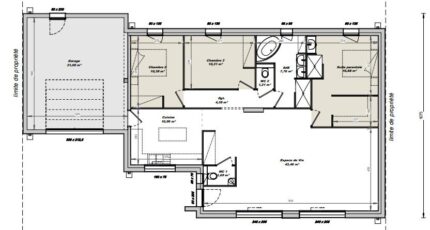
Maison T4 (107 m²) en vente à La Plaine-sur-Mer
PROCHE DE SAINT-NAZAIRE - MAISON 4 PIÈCES NEUVE
En vente à 1,5 km de la côte atlantique et à deux pas de Saint-Nazaire, nous vous présentons à La Plaine-sur-Mer (44770), cette maison de 4 pièces de plain-pied de 107 m². Son intérieur comporte trois chambres, une cuisine et une salle de bains.
Le terrain de la propriété s'étend sur 1 140 m².
La maison est neuve.
Il y a l'École Primaire Publique René Cercle et l'École Primaire Privée Notre-Dame à moins de 10 minutes . Niveau transports, on trouve la gare Pornic à moins de 10 minutes en voiture. On trouve un accès à la nationale N171 à 19 km. Il y a un tennis, une bibliothèque, deux boulangeries, trois commerces, un supermarché, un bureau de poste et une boucherie-charcuterie dans les environs.
Elle est proposée à l'achat pour 457 000 €.
N'hésitez pas à prendre contact avec Vincent COUCHAUX (06-74-86-07-98) pour obtenir de plus amples renseignements sur cette maison, sur les démarches à suivre ou sur les modalités de vente. Maisons Tradilignes Pornic est là pour vous accompagner dans tous vos projets immobiliers.

Mentions légales

Terrain proposé par un partenaire foncier selon disponibilités et autorisation de publicité au prix de 198 200 €. Hors droit d'enregistrement et frais de notaire. Terrain + Maison proposés au prix de 258 800 € (Hors branchements et raccordements, papiers peints, peintures, revêtement de sol dans les chambres. Tarif modifiable sans préavis). Etiquette énergie : A. Différents modèles disponibles pour ce terrain. Assurances et garanties du constructeur (RC professionnelle, décennale, dommage ouvrage, garantie de remboursement de l'acompte, livraison à prix et délai convenu) : https://www.tradilignes.fr/mentions-legales/.

Contactez l'agence de Pornic

02 40 82 59 91

    * Champs obligatoires

    Vos informations sont traitées par HEXAOM et transmises à un conseiller commercial qui vous contactera afin de répondre à votre demande. Les plans et images présentés sur notre site sont la propriété d’HEXAOM et ne peuvent pas être reproduits sans son accord. Pour retrouver notre politique de protection des données personnelles et exercer vos droits conformément à la « loi informatique et liberté » cliquez-ici.