Maison neuve à
La Chaize-le-Vicomte (85310) Référence : MC2316665_4

Prix du projet : Maison avec Terrain

prix 187 000 €

  • 4 pièces
  • 3 chambres
  • Surface maison 84 m2

VENTE : maison de 4 pièces (84 m²) à La Chaize-le-Vicomte
PROCHE DE LA ROCHE-SUR-YON - MAISON 4 PIÈCES NEUVE
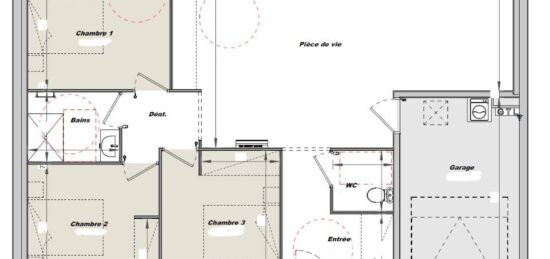
À vendre : à 37 km de la côte atlantique et à quelques kilomètres de La Roche-sur-Yon, Maisons Tradilignes La Roche-sur-Yon vous présente à La Chaize-le-Vicomte (85310), cette maison de 4 pièces de plain-pied de 84 m². Conçue de plain-pied, elle est composée de trois chambres, d'une cuisine et d'une salle de bains.
Le terrain de la propriété est de 410 m².
Cette maison est neuve.
On trouve l'École Primaire Privée Saint Joseph et l'École Primaire Publique Pierre Perret à moins de 10 minutes à pied et deux crèches. Côté transports, il y a la gare La Chaize-le-Vicomte à proximité. Il y a un accès à l'autoroute A87 à 5 km. On trouve un tennis, deux boulangeries, quatre commerces, une supérette et une boucherie-charcuterie dans les environs.
Son prix de vente est de 187 000 €.
N'hésitez pas à prendre contact avec Marie CASTELOT (02-51-46-19-69) pour toute information sur ce bien ou sur les modalités de vente. Faites de vos projets immobiliers une réalité avec Maisons Tradilignes La Roche-sur-Yon.

Mentions légales

Terrain proposé par un partenaire foncier selon disponibilités et autorisation de publicité au prix de 46 000 €. Hors droit d'enregistrement et frais de notaire. Maison proposée, avec un contrat de construction de maison individuelle, dans le cadre de la loi du 19/12/1990, au prix de 141 000 € (Hors branchements et raccordements, papiers peints, peintures, revêtement de sol dans les chambres, qui sont chiffrés dans les travaux qui restent à charge du client. Tarif modifiable sans préavis). Étiquette énergie : A. Différents modèles disponibles pour ce terrain. Assurances et garanties du constructeur comprises (RC professionnelle, décennale, dommage ouvrage).

Contactez l'agence de La Roche-sur-Yon

02 51 69 25 92

    * Champs obligatoires

    Vos informations sont traitées par HEXAOM et transmises à un conseiller commercial qui vous contactera afin de répondre à votre demande. Les plans et images présentés sur notre site sont la propriété d’HEXAOM et ne peuvent pas être reproduits sans son accord. Pour retrouver notre politique de protection des données personnelles et exercer vos droits conformément à la « loi informatique et liberté » cliquez-ici.