Maison neuve à
La Chaize-le-Vicomte (85310) Référence : MC2316665_2

Prix du projet : Maison avec Terrain

prix 173 400 €

  • 3 pièces
  • 2 chambres
  • Surface maison 68 m2

VENTE : maison F3 (68 m²) à La Chaize-le-Vicomte
PROCHE DE LA ROCHE-SUR-YON - MAISON 3 PIÈCES NEUVE
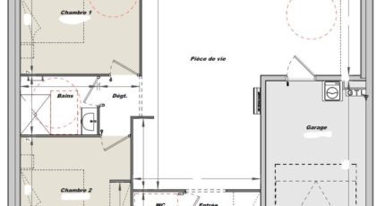
En vente : à 37 km de la côte atlantique et à quelques kilomètres de La Roche-sur-Yon, à La Chaize-le-Vicomte (85310), Maisons Tradilignes La Roche-sur-Yon vous propose cette maison de 3 pièces de plain-pied de 68 m² et de 410 m² de terrain.
Son intérieur propose deux chambres, une cuisine et une salle de bains. Cette maison est neuve.
Il y a l'École Primaire Privée Saint Joseph et l'École Primaire Publique Pierre Perret à moins de 10 minutes à pied et deux structures d'accueil pour les tout-petits. Niveau transports en commun, on trouve la gare La Chaize-le-Vicomte à quelques pas du bien. L'autoroute A87 est accessible à 5 km. Il y a un tennis, deux boulangeries, quatre commerces, une boucherie-charcuterie et une supérette à quelques minutes de la maison.
Elle est à vendre pour la somme de 173 400 €.
Contactez notre agence (CASTELOT Marie : 02-51-46-19-69) pour tout renseignement sur la maison ou sur les démarches à suivre. Maisons Tradilignes La Roche-sur-Yon vous accompagne dans tous vos projets immobiliers et à toutes les étapes de l'achat.

Mentions légales

Terrain proposé par un partenaire foncier selon disponibilités et autorisation de publicité au prix de 46 000 €. Hors droit d'enregistrement et frais de notaire. Maison proposée, avec un contrat de construction de maison individuelle, dans le cadre de la loi du 19/12/1990, au prix de 127 400 € (Hors branchements et raccordements, papiers peints, peintures, revêtement de sol dans les chambres, qui sont chiffrés dans les travaux qui restent à charge du client. Tarif modifiable sans préavis). Étiquette énergie : A. Différents modèles disponibles pour ce terrain. Assurances et garanties du constructeur comprises (RC professionnelle, décennale, dommage ouvrage).

Contactez l'agence de La Roche-sur-Yon

02 51 69 25 92

    * Champs obligatoires

    Vos informations sont traitées par HEXAOM et transmises à un conseiller commercial qui vous contactera afin de répondre à votre demande. Les plans et images présentés sur notre site sont la propriété d’HEXAOM et ne peuvent pas être reproduits sans son accord. Pour retrouver notre politique de protection des données personnelles et exercer vos droits conformément à la « loi informatique et liberté » cliquez-ici.