Maison neuve à
La Chaize-le-Vicomte (85310) Référence : MC2309013_3

Prix du projet : Maison avec Terrain

prix 174 500 €

  • 3 pièces
  • 2 chambres
  • Surface maison 68 m2

VENTE : maison T3 (68 m²) à La Chaize-le-Vicomte
MAISON 3 PIÈCES NEUVE - PROCHE DE LA ROCHE-SUR-YON
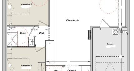
À vendre à 37 km de la côte atlantique et à 10 km de La Roche-sur-Yon, venez découvrir à La Chaize-le-Vicomte (85310), cette maison de 3 pièces de plain-pied de 68 m² et de 395 m² de terrain.
Conçue de plain-pied, elle compte deux chambres, une cuisine et une salle de bains. Cette maison est neuve.
L'École Primaire Privée Saint Joseph et l'École Primaire Publique Pierre Perret sont implantées à moins de 10 minutes à pied, tout comme deux crèches. Côté transports, on trouve la gare La Chaize-le-Vicomte juste à côté. On trouve un accès à l'autoroute A87 à 5 km. Il y a un tennis, deux boulangeries, quatre commerces, une supérette et une boucherie-charcuterie à proximité.
Son prix de vente est de 174 500 €.
Prenez contact avec Marie CASTELOT (tél : 02-51-46-19-69) pour obtenir de plus amples renseignements sur la maison.

Mentions légales

Terrain proposé par un partenaire foncier selon disponibilités et autorisation de publicité au prix de 47 100 €. Hors droit d'enregistrement et frais de notaire. Maison proposée, avec un contrat de construction de maison individuelle, dans le cadre de la loi du 19/12/1990, au prix de 127 400 € (Hors branchements et raccordements, papiers peints, peintures, revêtement de sol dans les chambres, qui sont chiffrés dans les travaux qui restent à charge du client. Tarif modifiable sans préavis). Étiquette énergie : A. Différents modèles disponibles pour ce terrain. Assurances et garanties du constructeur comprises (RC professionnelle, décennale, dommage ouvrage).

Contactez l'agence de La Roche-sur-Yon

02 51 69 25 92

    * Champs obligatoires

    Vos informations sont traitées par HEXAOM et transmises à un conseiller commercial qui vous contactera afin de répondre à votre demande. Les plans et images présentés sur notre site sont la propriété d’HEXAOM et ne peuvent pas être reproduits sans son accord. Pour retrouver notre politique de protection des données personnelles et exercer vos droits conformément à la « loi informatique et liberté » cliquez-ici.