Maison neuve à
La Chaize-le-Vicomte (85310) Référence : MC2309013_2

Prix du projet : Maison avec Terrain

prix 163 500 €

  • 3 pièces
  • 2 chambres
  • Surface maison 67 m2

La Chaize-le-Vicomte : maison F3 (67 m²) à vendre
PROCHE DE LA ROCHE-SUR-YON - MAISON 3 PIÈCES NEUVE
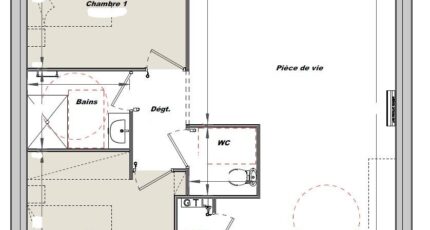
En vente : localisée à 37 km de l'océan Atlantique et à deux pas de La Roche-sur-Yon, votre agence Maisons Tradilignes La Roche-sur-Yon est ravie de vous présenter cette maison de 3 pièces de plain-pied de 67 m² et de 395 m² de terrain à La Chaize-le-Vicomte (85310). Conçue de plain-pied, elle comporte deux chambres, une cuisine et une salle de bains.
Cette maison est neuve.
Il y a l'École Primaire Privée Saint Joseph et l'École Primaire Publique Pierre Perret à moins de 10 minutes à pied et deux crèches. Niveau transports, on trouve la gare La Chaize-le-Vicomte dans un rayon de 1 km. On trouve un accès à l'autoroute A87 à 5 km. Il y a un tennis, deux boulangeries, quatre commerces, une boucherie-charcuterie et une supérette dans les environs.
Elle est à vendre pour la somme de 163 500 €.
Contactez Marie CASTELOT (02-51-46-19-69) pour toute question sur cette maison ou sur les démarches à suivre. Faites de vos projets immobiliers une réalité avec Maisons Tradilignes La Roche-sur-Yon.

Mentions légales

Terrain proposé par un partenaire foncier selon disponibilités et autorisation de publicité au prix de 47 100 €. Hors droit d'enregistrement et frais de notaire. Maison proposée, avec un contrat de construction de maison individuelle, dans le cadre de la loi du 19/12/1990, au prix de 116 400 € (Hors branchements et raccordements, papiers peints, peintures, revêtement de sol dans les chambres, qui sont chiffrés dans les travaux qui restent à charge du client. Tarif modifiable sans préavis). Étiquette énergie : A. Différents modèles disponibles pour ce terrain. Assurances et garanties du constructeur comprises (RC professionnelle, décennale, dommage ouvrage).

Contactez l'agence de La Roche-sur-Yon

02 51 69 25 92

    * Champs obligatoires

    Vos informations sont traitées par HEXAOM et transmises à un conseiller commercial qui vous contactera afin de répondre à votre demande. Les plans et images présentés sur notre site sont la propriété d’HEXAOM et ne peuvent pas être reproduits sans son accord. Pour retrouver notre politique de protection des données personnelles et exercer vos droits conformément à la « loi informatique et liberté » cliquez-ici.