Maison neuve à
Villeneuve-en-Retz (44580) Référence : VC2406262_3

Prix du projet : Maison avec Terrain

prix 420 000 €

  • 8 pièces
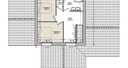
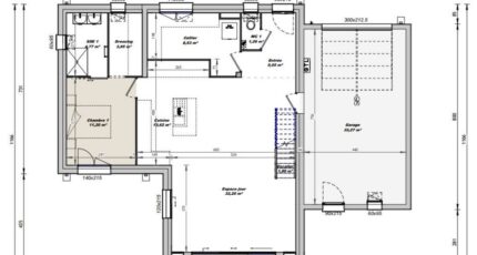
  • 3 chambres
  • Surface maison 119 m2

VENTE d'une maison F8 (119 m²) à Fresnay-en-Retz
CENTRE-VILLE - MAISON 8 PIÈCES NEUVE
À 12 km de l'océan Atlantique et à deux pas de Saint-Herblain, nous sommes heureux de vous présenter cette maison de 8 pièces de 119 m² au coeur de Fresnay-en-Retz (44580). Son intérieur est composé de trois chambres, d'une cuisine et de deux salles de bains.
Le terrain de la maison s'étend sur 1 209 m².
C'est une maison de 2 niveaux. Elle est neuve.
L'École Primaire Privée Saint Joseph et l'École Primaire Publique Victor Schoelcher sont implantées à moins de 10 minutes à pied. Niveau transports en commun, on trouve les gares Machecoul, Bourgneuf-en-Retz et Saint-Hilaire-de-Chaléons à moins de 10 minutes en voiture. Il y a deux boulangeries à quelques minutes à peine.
Elle est proposée à l'achat pour 420 000 €.
N'hésitez pas à prendre contact avec notre agence (COUCHAUX Vincent : 06-74-86-07-98) pour toute information sur la maison. Donnez vie à vos projets immobiliers avec Maisons Tradilignes Pornic.

Mentions légales

Terrain proposé par un partenaire foncier selon disponibilités et autorisation de publicité au prix de 105 100 €. Hors droit d'enregistrement et frais de notaire. Terrain + Maison proposés au prix de 420 000 € (Hors branchements et raccordements, papiers peints, peintures, revêtement de sol dans les chambres. Tarif modifiable sans préavis). Etiquette énergie : A. Différents modèles disponibles pour ce terrain. Assurances et garanties du constructeur (RC professionnelle, décennale, dommage ouvrage, garantie de remboursement de l'acompte, livraison à prix et délai convenu) : https://www.tradilignes.fr/mentions-legales/.

Contactez l'agence de Pornic

02 40 82 59 91

    * Champs obligatoires

    Vos informations sont traitées par HEXAOM et transmises à un conseiller commercial qui vous contactera afin de répondre à votre demande. Les plans et images présentés sur notre site sont la propriété d’HEXAOM et ne peuvent pas être reproduits sans son accord. Pour retrouver notre politique de protection des données personnelles et exercer vos droits conformément à la « loi informatique et liberté » cliquez-ici.