Maison neuve à
Corsept (44560) Référence : VC2343229_2

Prix du projet : Maison avec Terrain

prix 264 500 €

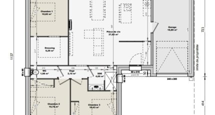
  • 4 pièces
  • 3 chambres
  • Surface maison 84 m2

VENTE : maison T4 (84 m²) à Corsept
MAISON 4 PIÈCES NEUVE - PROCHE DE SAINT-NAZAIRE
Sur la côte atlantique et à 12 km de Saint-Nazaire, notre agence Maisons Tradilignes Pornic est ravie de vous présenter cette maison de 4 pièces de plain-pied de 84 m² à Corsept (44560). Elle se divise en trois chambres, une cuisine et une salle de bains.
Le terrain de la maison s'étend sur 703 m².
Cette maison est neuve.
L'École Primaire Privée Sainte Thérèse et l'École Primaire Publique Camille Corot sont implantées à moins de 10 minutes . Niveau transports en commun, il y a les gares Donges et Montoir-de-Bretagne à moins de 10 minutes en voiture. La nationale N171 est accessible à 8 km. On trouve deux boulangeries et un commerce à proximité.
Son prix de vente est de 264 500 €.
Prenez contact avec Vincent COUCHAUX (06-74-86-07-98) pour obtenir de plus amples informations sur cette maison, sur les démarches à suivre ou sur les modalités de vente. Maisons Tradilignes Pornic vous accompagne à toutes les étapes de l'achat et dans tous vos projets immobiliers.

Mentions légales

Terrain proposé par un partenaire foncier selon disponibilités et autorisation de publicité au prix de 97 260 €. Hors droit d'enregistrement et frais de notaire. Maison proposée, avec un contrat de construction de maison individuelle, dans le cadre de la loi du 19/12/1990, au prix de 167 240 € (Hors branchements et raccordements, papiers peints, peintures, revêtement de sol dans les chambres, qui sont chiffrés dans les travaux qui restent à charge du client. Tarif modifiable sans préavis). Étiquette énergie : A. Différents modèles disponibles pour ce terrain. Assurances et garanties du constructeur comprises (RC professionnelle, décennale, dommage ouvrage).

Contactez l'agence de Pornic

02 40 82 59 91

    * Champs obligatoires

    Vos informations sont traitées par HEXAOM et transmises à un conseiller commercial qui vous contactera afin de répondre à votre demande. Les plans et images présentés sur notre site sont la propriété d’HEXAOM et ne peuvent pas être reproduits sans son accord. Pour retrouver notre politique de protection des données personnelles et exercer vos droits conformément à la « loi informatique et liberté » cliquez-ici.