Maison neuve à
Cheix-en-Retz (44640) Référence : VC2437246_3

Prix du projet : Maison avec Terrain

prix 390 000 €

  • 8 pièces
  • 3 chambres
  • Surface maison 119 m2

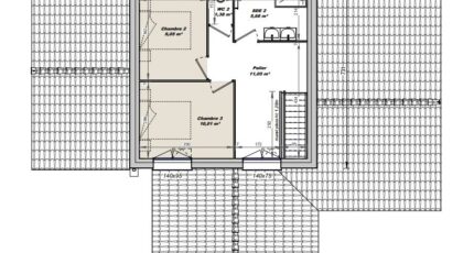
VENTE d'une maison F8 (119 m²) à Cheix-en-Retz
MAISON 8 PIÈCES NEUVE - PROCHE DE NANTES
À vendre : située à 20 km de la côte atlantique et à deux pas de Nantes, nous sommes heureux de vous présenter cette maison de 8 pièces de 119 m² à Cheix-en-Retz (44640).
Cette maison comporte 2 niveaux. Son intérieur est composé de trois chambres, d'une cuisine et de deux salles de bains. La maison est neuve.
Le terrain du bien s'étend sur 560 m².
Il y a l'École Primaire Publique Jean de la Fontaine à moins de 10 minutes . Niveau transports en commun, on trouve quatre gares à moins de 10 minutes en voiture.
Son prix de vente est de 390 000 €.
Contactez Vincent COUCHAUX (tél : 06-74-86-07-98) pour toute information sur cette maison.

Mentions légales

Terrain proposé par un partenaire foncier selon disponibilités et autorisation de publicité au prix de 75 700 €. Hors droit d'enregistrement et frais de notaire. Terrain + Maison proposés au prix de 390 000 € (Hors branchements et raccordements, papiers peints, peintures, revêtement de sol dans les chambres. Tarif modifiable sans préavis). Etiquette énergie : A. Différents modèles disponibles pour ce terrain. Assurances et garanties du constructeur (RC professionnelle, décennale, dommage ouvrage, garantie de remboursement de l'acompte, livraison à prix et délai convenu) : https://www.tradilignes.fr/mentions-legales/.

Contactez l'agence de Pornic

02 40 82 59 91

    * Champs obligatoires

    Vos informations sont traitées par HEXAOM et transmises à un conseiller commercial qui vous contactera afin de répondre à votre demande. Les plans et images présentés sur notre site sont la propriété d’HEXAOM et ne peuvent pas être reproduits sans son accord. Pour retrouver notre politique de protection des données personnelles et exercer vos droits conformément à la « loi informatique et liberté » cliquez-ici.