Maison neuve à
Chauvé (44320) Référence : VC2385123_3

Prix du projet : Maison avec Terrain

prix 424 000 €

  • 8 pièces
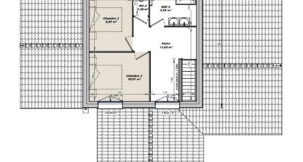
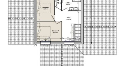
  • 3 chambres
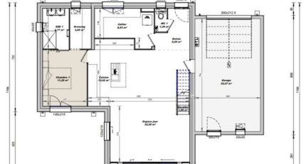
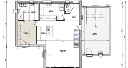
  • Surface maison 119 m2

Chauvé : maison de 8 pièces (119 m²) à vendre
MAISON 8 PIÈCES NEUVE - PROCHE DE SAINT-NAZAIRE
À vendre sur le littoral atlantique et à quelques kilomètres de Saint-Nazaire, Maisons Tradilignes Pornic vous propose cette maison de 8 pièces de 119 m² à Chauvé (44320).
Cette maison possède 2 niveaux. Elle dispose de trois chambres, d'une cuisine et de deux salles de bains. La maison est neuve.
Le terrain de la propriété s'étend sur 524 m².
L'École Primaire Privée Saint Joseph et l'École Primaire Publique du Parc sont implantées à moins de 10 minutes . Niveau transports, on trouve les gares La Bernerie-en-Retz et Pornic à moins de 10 minutes en voiture. Il y a un tennis, une boulangerie, une boucherie-charcuterie et une supérette dans les environs.
Elle est proposée à l'achat pour 424 000 €.
N'hésitez pas à prendre contact avec Vincent COUCHAUX (06-74-86-07-98) pour toute information sur cette maison et sur les modalités de vente. Maisons Tradilignes Pornic vous accompagne à toutes les étapes de votre projet et dans tous vos projets immobiliers.

Mentions légales

Terrain proposé par un partenaire foncier selon disponibilités et autorisation de publicité au prix de 110 300 €. Hors droit d'enregistrement et frais de notaire. Terrain + Maison proposés au prix de 313 700 € (Hors branchements et raccordements, papiers peints, peintures, revêtement de sol dans les chambres. Tarif modifiable sans préavis). Etiquette énergie : A. Différents modèles disponibles pour ce terrain. Assurances et garanties du constructeur (RC professionnelle, décennale, dommage ouvrage, garantie de remboursement de l'acompte, livraison à prix et délai convenu) : https://www.tradilignes.fr/mentions-legales/.

Contactez l'agence de Pornic

02 40 82 59 91

    * Champs obligatoires

    Vos informations sont traitées par HEXAOM et transmises à un conseiller commercial qui vous contactera afin de répondre à votre demande. Les plans et images présentés sur notre site sont la propriété d’HEXAOM et ne peuvent pas être reproduits sans son accord. Pour retrouver notre politique de protection des données personnelles et exercer vos droits conformément à la « loi informatique et liberté » cliquez-ici.