Maison neuve à
Chauvé (44320) Référence : VC2385123_2

Prix du projet : Maison avec Terrain

prix 369 500 €

  • 4 pièces
  • 3 chambres
  • Surface maison 107 m2

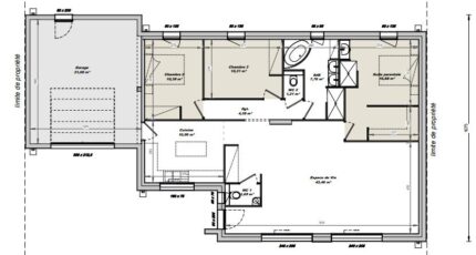
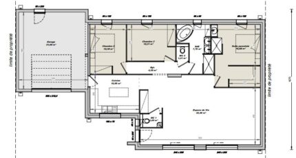
VENTE d'une maison de 4 pièces (107 m²) à Chauvé
PROCHE DE SAINT-NAZAIRE - MAISON 4 PIÈCES NEUVE
En vente à 9 km de l'océan Atlantique et à deux pas de Saint-Nazaire, Maisons Tradilignes Pornic vous présente cette maison de 4 pièces de plain-pied de 107 m² à Chauvé (44320).
Son intérieur comporte trois chambres, une cuisine et une salle de bains. La maison est neuve.
Le terrain du bien s'étend sur 524 m².
Il y a l'École Primaire Privée Saint Joseph et l'École Primaire Publique du Parc à moins de 10 minutes . Niveau transports, on trouve deux gares (La Bernerie-en-Retz et Pornic) à moins de 10 minutes en voiture. Il y a un tennis, une boulangerie, une supérette et une boucherie-charcuterie dans les environs.
Elle est à vendre pour la somme de 369 500 €.
N'hésitez pas à prendre contact avec Vincent COUCHAUX (tél : 06-74-86-07-98) pour plus d'informations sur la maison, sur les démarches à suivre ou sur les modalités de vente. Donnez vie à vos projets immobiliers avec Maisons Tradilignes Pornic.

Mentions légales

Terrain proposé par un partenaire foncier selon disponibilités et autorisation de publicité au prix de 110 300 €. Hors droit d'enregistrement et frais de notaire. Terrain + Maison proposés au prix de 369 500 € (Hors branchements et raccordements, papiers peints, peintures, revêtement de sol dans les chambres. Tarif modifiable sans préavis). Etiquette énergie : A. Différents modèles disponibles pour ce terrain. Assurances et garanties du constructeur (RC professionnelle, décennale, dommage ouvrage, garantie de remboursement de l'acompte, livraison à prix et délai convenu) : https://www.tradilignes.fr/mentions-legales/.

Contactez l'agence de Pornic

02 40 82 59 91

    * Champs obligatoires

    Vos informations sont traitées par HEXAOM et transmises à un conseiller commercial qui vous contactera afin de répondre à votre demande. Les plans et images présentés sur notre site sont la propriété d’HEXAOM et ne peuvent pas être reproduits sans son accord. Pour retrouver notre politique de protection des données personnelles et exercer vos droits conformément à la « loi informatique et liberté » cliquez-ici.