Maison neuve à
Chaumes-en-Retz (44320) Référence : VC2352430_3

Prix du projet : Maison avec Terrain

prix 379 500 €

  • 4 pièces
  • 3 chambres
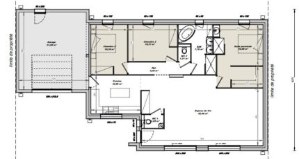
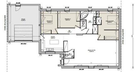
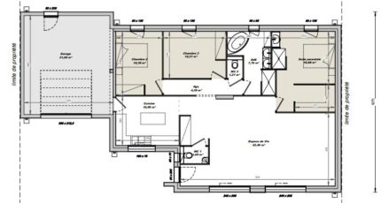
  • Surface maison 107 m2

Maison F4 (107 m²) à vendre à Chaumes-en-Retz
PROCHE DE NANTES - MAISON 4 PIÈCES NEUVE
En vente : à 12 km de l'océan Atlantique et à deux pas de Nantes, votre agence Maisons Tradilignes Pornic est heureuse de vous présenter cette maison de 4 pièces de plain-pied de 107 m² et de 1 137 m² de terrain à Chaumes-en-Retz (44320). Elle est composée de trois chambres, d'une cuisine et d'une salle de bains.
La maison est neuve.
Il y a l'École Primaire Publique Armelle Chevalier et l'École Primaire Privée Notre-Dame à moins de 10 minutes et deux crèches. Côté transports, on trouve quatre gares à moins de 10 minutes en voiture. Il y a une boulangerie et une épicerie dans les environs.
Elle est proposée à l'achat pour 379 500 €.
Prenez contact avec Vincent COUCHAUX (06-74-86-07-98) pour toute question sur cette maison, sur les modalités de vente ou sur les démarches à suivre. Maisons Tradilignes Pornic vous accompagne dans tous vos projets immobiliers et à toutes les étapes de l'achat.

Mentions légales

Terrain proposé par un partenaire foncier selon disponibilités et autorisation de publicité au prix de 120 950 €. Hors droit d'enregistrement et frais de notaire. Maison proposée, avec un contrat de construction de maison individuelle, dans le cadre de la loi du 19/12/1990, au prix de 258 550 € (Hors branchements et raccordements, papiers peints, peintures, revêtement de sol dans les chambres, qui sont chiffrés dans les travaux qui restent à charge du client. Tarif modifiable sans préavis). Étiquette énergie : A. Différents modèles disponibles pour ce terrain. Assurances et garanties du constructeur comprises (RC professionnelle, décennale, dommage ouvrage).

Contactez l'agence de Pornic

02 40 82 59 91

    * Champs obligatoires

    Vos informations sont traitées par HEXAOM et transmises à un conseiller commercial qui vous contactera afin de répondre à votre demande. Les plans et images présentés sur notre site sont la propriété d’HEXAOM et ne peuvent pas être reproduits sans son accord. Pour retrouver notre politique de protection des données personnelles et exercer vos droits conformément à la « loi informatique et liberté » cliquez-ici.