Maison neuve à
Bourneau (85200) Référence : MC2316628_1

Prix du projet : Maison avec Terrain

prix 143 100 €

  • 3 pièces
  • 2 chambres
  • Surface maison 66 m2

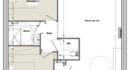
Bourneau : maison T3 (66 m²) à vendre
MAISON 3 PIÈCES NEUVE
À 41 km de la côte atlantique, Maisons Tradilignes La Roche-sur-Yon vous présente cette maison de 3 pièces de plain-pied de 66 m² et de 636 m² de terrain à Bourneau (85200).
Conçue de plain-pied, elle dispose de deux chambres, d'une cuisine et d'une salle de bains. La maison est neuve.
L'École Primaire Publique à l'Orée des Bois est implantée à moins de 10 minutes à pied. On trouve un accès à l'autoroute A83 à 10 km.
Son prix de vente est de 143 100 €.
Contactez Marie CASTELOT (tél : 02-51-46-19-69) pour toute question sur la maison ou sur les modalités de vente. Donnez vie à vos projets immobiliers avec Maisons Tradilignes La Roche-sur-Yon.

Mentions légales

Terrain proposé par un partenaire foncier selon disponibilités et autorisation de publicité au prix de 26 712 €. Hors droit d'enregistrement et frais de notaire. Maison proposée, avec un contrat de construction de maison individuelle, dans le cadre de la loi du 19/12/1990, au prix de 116 388 € (Hors branchements et raccordements, papiers peints, peintures, revêtement de sol dans les chambres, qui sont chiffrés dans les travaux qui restent à charge du client. Tarif modifiable sans préavis). Étiquette énergie : A. Différents modèles disponibles pour ce terrain. Assurances et garanties du constructeur comprises (RC professionnelle, décennale, dommage ouvrage).

Contactez l'agence de La Roche-sur-Yon

02 51 69 25 92

    * Champs obligatoires

    Vos informations sont traitées par HEXAOM et transmises à un conseiller commercial qui vous contactera afin de répondre à votre demande. Les plans et images présentés sur notre site sont la propriété d’HEXAOM et ne peuvent pas être reproduits sans son accord. Pour retrouver notre politique de protection des données personnelles et exercer vos droits conformément à la « loi informatique et liberté » cliquez-ici.