Maison neuve à
Bourneau (85200) Référence : MC2316607_3

Prix du projet : Maison avec Terrain

prix 150 100 €

  • 4 pièces
  • 3 chambres
  • Surface maison 82 m2

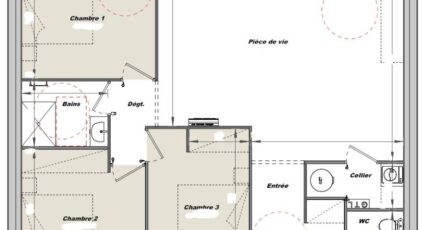
VENTE : maison de 4 pièces (82 m²) à Bourneau
MAISON 4 PIÈCES NEUVE
À 41 km de la côte atlantique, nous sommes ravis de vous présenter cette maison de 4 pièces de plain-pied de 82 m² et de 483 m² de terrain à vendre à Bourneau (85200).
Elle se divise en trois chambres, une cuisine et une salle de bains. La maison est neuve.
L'École Primaire Publique à l'Orée des Bois se trouve à moins de 10 minutes à pied. L'autoroute A83 est accessible à 10 km.
Son prix de vente est de 150 100 €.
N'hésitez pas à prendre contact avec notre agence (CASTELOT Marie : 02-51-46-19-69) pour toute question sur ce bien. Faites de vos projets immobiliers une réalité avec Maisons Tradilignes La Roche-sur-Yon.

Mentions légales

Terrain proposé par un partenaire foncier selon disponibilités et autorisation de publicité au prix de 20 286 €. Hors droit d'enregistrement et frais de notaire. Maison proposée, avec un contrat de construction de maison individuelle, dans le cadre de la loi du 19/12/1990, au prix de 129 814 € (Hors branchements et raccordements, papiers peints, peintures, revêtement de sol dans les chambres, qui sont chiffrés dans les travaux qui restent à charge du client. Tarif modifiable sans préavis). Étiquette énergie : A. Différents modèles disponibles pour ce terrain. Assurances et garanties du constructeur comprises (RC professionnelle, décennale, dommage ouvrage).

Contactez l'agence de La Roche-sur-Yon

02 51 69 25 92

    * Champs obligatoires

    Vos informations sont traitées par HEXAOM et transmises à un conseiller commercial qui vous contactera afin de répondre à votre demande. Les plans et images présentés sur notre site sont la propriété d’HEXAOM et ne peuvent pas être reproduits sans son accord. Pour retrouver notre politique de protection des données personnelles et exercer vos droits conformément à la « loi informatique et liberté » cliquez-ici.